♚中山保利天汇左岸
售楼处电话:400-013-9098【销售中心】客服专线
♚在售户型图丨项目介绍丨最新特价房源丨周边配套丨详细解答
♚本电话为开发商提供线上售楼电话,仅限服务购房相关咨询及预约
♚本文内容为广告推广,涉及房价或现有房源可能出现变更,请致电详询并以售楼部为准
♚免责:本文部分内容来自网络,如有侵权,请联系删除
中山保利天汇左岸售楼处电话:4000139098售楼中心,楼盘项目全面介绍,包含楼盘简介、售楼电话、小区户型图片、营销中心位置、区位优势、交通、周边商业配套、户型图等楼盘详情以上全文就是【保利天汇左岸】楼盘详情,这篇文章的详细分析和点评,感谢您的阅读,希望为您的购房置业选择上提供帮助,房产开盘预售动态、价格走势资讯、以及更多楼市热门房源快讯、房屋新闻情况,待定更新发布,敬请持续关注订阅。

项目效果图
亮点四:保利“天字系”产品,中山首个“WELL集和社区”
保利天汇|左岸外立面采用 现代主义设计风格,项目整体坐北朝南,由 10栋住宅及周边公建配套所组成。

项目效果图
整体建筑采用 点阵式布局,可保障户户朝南,通风采光最大化,同时运用 围合中央景观活动中心园林,自东向西四大布局十大主题,打造两环、一心、六大功能空间,满足全龄段业主需求。社区内部还涵盖 星光健康跑道、 阳光泳池、全 龄活动空间及 邻里共享空间等功能区域,提升精英业主生活品质。

保利天汇不仅是马鞍岛上首个百亩大宅,还是保利在的中山首座 “天字系”建筑,一座可居住的艺术品,产品打造非常讲究,以突破性的咬合式复式产品设计,致敬中山马鞍岛得天独厚的土地天赋。

【中山新中心,下一个深圳前海】
马鞍岛作为深中首个合作区,定位为“湾区国际化、现代化、创新性城市新中心”,承接前海、横琴、南沙三大国 家级自贸区产业外溢,必是中山未来新中心,造就下一个前海。

2012年,随着广东省政府通过了翠亨新区的发展总规划,恰逢中山正推进东部片区的开发,政府将全力支持翠亨新区的建设。彼时大湾区的概念还未成立,但处在珠三角核心地位的马鞍岛,注定将来必有一番作为。

马鞍岛同时位于位于南沙新区、横琴新区、前海新区三区交叠的核芯位置,是大湾区着力打造的重点区域,也被中山政府给予厚望,这里将被高起点打造建设成为国际一流、湾区顶尖的现代化滨海新城。
直到2015年,一道惊雷划破珠三角的长空,深中通道建设正式批复通过,将于2016年年底开始建设,预计在2024年通车。此后,深中政府积极推进深中一体化,在马鞍岛上建立深中合作区,位置得天独厚的马鞍岛至此得以连通前海,一跃成为热门板块。

彼时中山房价就借助深中概念一路攀升,这在中山前所未见。这条对于马鞍岛来说至关重要的大桥,给马鞍岛注入了新的生命力。

遥望海那边的深圳,是一片璀璨光芒。前海自贸区是一座正在勃勃兴起的美丽新城,也是深圳近几年重金打造的区域,未来要建金融中心、商务中心、科研中心等,比肩纽约的曼哈顿,发展贸易和金融。可见未来这里将会产生大量的就业,但却缺少相应的居住空间。

前海往东,房价高昂,学位紧缺,机会极少,往北亦然。而深中通道正好给与了深圳人向西看的机会。
据目前情况来看,马鞍岛上的房价只是深圳的五分之一左右,大桥建成后,深圳到中山的时间将由2个小时缩短到20分钟左右,比福田更近前海。马鞍岛的居住价值也开始被看见 。
【华为等中国百强企业汇聚,产业新城】
马鞍岛专注发展健康医疗、精密制造和现代服务业这三大产业。目前已有华为、哈工大机器人集团、中兴智慧产业园等企业 90 多家科创平台和高新技术产业入驻,未来将会成为顶尖的科学城,吸引大批量的精英入岛。

【广深中规模最大的教育集聚区,40 所学校一站式教育】
规划 40 所学校,其中小学 13 所,中学 9 所,幼儿园 18 所,提供从幼儿园到大学的全龄教育资源;除了基础教育 外,中山科技大学新校拟选址翠亨新区,投入百亿元招生 10000 人左右,拟在 2025 年建成新型研究型大学。

【打造湾区唯一,建立国际医疗城】
规划 7 所医院,其中包含了 2 所三甲医院。最引人瞩目的湾区国际医疗城,将于在 2023 年 12 月 21 日之前竣工, 就在距离项目南边 500 米的地方,提供从出生到养老的全生命周期医疗服务;

【打造全龄集中式配套,应有尽有】
自然生态:规划了 13 个生态公园、4 大广场、22 个区域健身场,距离项目 1 公里的翠亨国家湿地公园和距离 项目 3 公里翠湖公园都已经开放

商业娱乐:岭南水街、2 万方海湾风情街、滨水休闲商业街、购物公园、海港商业广场等丰富多彩的商业娱乐 配套
文化艺术:翠亨音乐厅、海湾剧场、中山科学馆翠湾文化艺术中心、体育馆以及国家一级的大湾区博物馆(榄 菊艺投已摘牌最南端地块并将启动建设)

保利天汇|左岸位于马鞍岛核心,坐拥翠湖公园绝佳生态景观,其圈层效应未来将给片区赋能,助力片区崛起!

项目效果图
亮点四:保利“天字系”产品,中山首个“WELL集和社区”
保利天汇|左岸外立面采用现代主义设计风格,项目整体坐北朝南,由10栋住宅及周边公建配套所组成。

项目效果图
整体建筑采用点阵式布局,可保障户户朝南,通风采光最大化,同时运用围合中央景观活动中心园林,自东向西四大布局十大主题,打造两环、一心、六大功能空间,满足全龄段业主需求。社区内部还涵盖星光健康跑道、阳光泳池、全龄活动空间及邻里共享空间等功能区域,提升精英业主生活品质。

项目效果图
在户型设计上,保利天汇|左岸打造的是全中山距离深圳最近的保利天字系平层,户型涵盖约 90-117平创意空间,满足个性化需求,投资自住两相宜。此外,采用2梯4户设计,全南向蝶形设计,通风采光极佳。

项目效果图
亮点五:从幼儿园到小学、中学,12年一站式教育配套应有尽有。
此外,保利天汇|左岸西面紧靠中小学预留用地,距离项目10分钟车程处有已开学的中山纪念小学、翠亨重点中学等(计划将于2年后开学),12年一站式教育配套一步配齐。

示意图
2021年6月1日,马鞍岛保利天汇左岸正式开盘。早上10点,项目开启线上抢房,仅过去45秒,126套房源便被全部秒杀。开盘即售罄,跑出了马鞍岛的热销节奏!此前,保利天汇左岸认筹客户共775个,本次开盘约等于7个人抢1套房,可谓是相当抢手。

保利天汇左岸,是中山保利在马鞍岛献上的又一 “天”字系名作,代表着占据一城 核心资源的匠心之作,因为稀缺,所以珍贵。保利天汇左岸,领潮深中高品质人居。
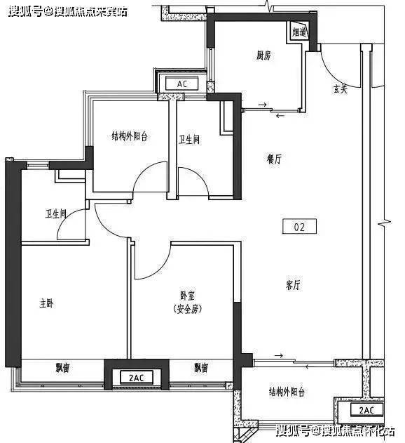
保利天汇左岸住宅单位,此前曾公布 89-115㎡三四房单位户型图,其中89㎡、98㎡为2+1房,106㎡、115㎡为3+1房,均为带装单位。

89㎡2+1房

98㎡2+1房

106㎡3+1房

115㎡3+1房

♚中山保利天汇左岸
售楼处电话:400-013-9098【销售中心】客服专线
♚在售户型图丨项目介绍丨最新特价房源丨周边配套丨详细解答
♚本电话为开发商提供线上售楼电话,仅限服务购房相关咨询及预约
♚本文内容为广告推广,涉及房价或现有房源可能出现变更,请致电详询并以售楼部为准
♚免责:本文部分内容来自网络,如有侵权,请联系删除
中山保利天汇左岸售楼处电话:4000139098售楼中心,楼盘项目全面介绍,包含楼盘简介、售楼电话、小区户型图片、营销中心位置、区位优势、交通、周边商业配套、户型图等楼盘详情以上全文就是【保利天汇左岸】楼盘详情,这篇文章的详细分析和点评,感谢您的阅读,希望为您的购房置业选择上提供帮助,房产开盘预售动态、价格走势资讯、以及更多楼市热门房源快讯、房屋新闻情况,待定更新发布,敬请持续关注订阅。