蔚蓝左岸花园(蔚蓝左岸花园)首页网站-2025年蔚蓝左岸花园+蔚蓝左岸花园房价+户型图+小区环境+配套
扫描到手机,新闻随时看
扫一扫,用手机看文章
更加方便分享给朋友
🌈蔚蓝左岸花园销售中心电话:400-013-9098(已认证☑☑☑)
🌈蔚蓝左岸花园营销中心电话:400-013-9098(已认证☑☑☑)
丨楼盘位置丨户型介绍丨房源情况丨优惠活动丨教育资源丨交通便利丨样板间展示丨社区环境丨交房标准丨周边配套
【开发商】蔚蓝置地
【规模】总用地面积:25829.97㎡;总建筑面积:108150㎡,其中住宅93000㎡,商业10000㎡
【容积率】4.23
【绿化率】≥30%
【户数】总户数992,可售户数545
【产品】建面约75-112㎡3-4房
【梯户比】3梯6户
【车位比】1:1.14
【交付标准】精装
【交付时间】已交房
【物业公司】蔚蓝物业
具体位置:深圳·坪山区碧岭街道碧沙北路与规划华旭路交会处东南角
🌈蔚蓝左岸花园销售中心电话:400-013-9098(已认证☑☑☑)
🌈蔚蓝左岸花园营销中心电话:400-013-9098(已认证☑☑☑)
丨楼盘位置丨户型介绍丨房源情况丨优惠活动丨教育资源丨交通便利丨样板间展示丨社区环境丨交房标准丨周边配套
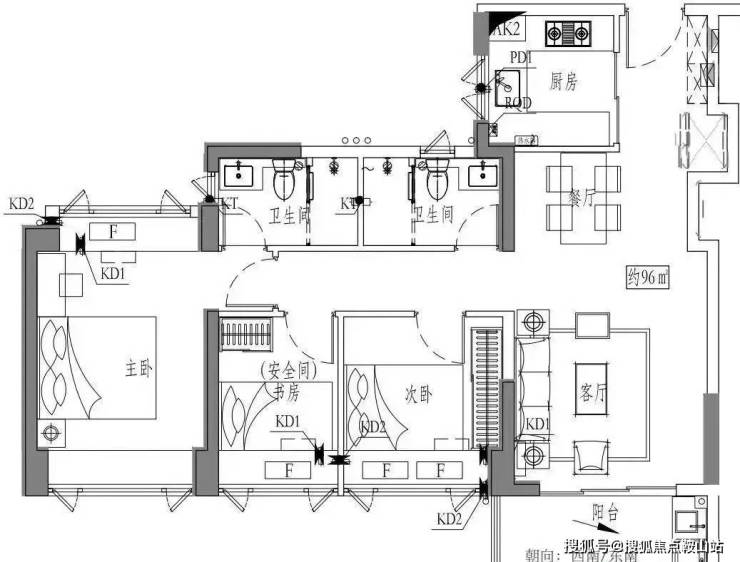
▪ 💎 极致3/4房 同等面积多一房
【96㎡三房两卫】
·南北通透 通风采光俱佳,餐客厅、阳台一体,共享交流空间
·主卧套房 轻奢套卧,自带卫浴与衣帽间,更私密舒适
·高效收纳 收纳面积超21%,东西再多,家中也能始终颜值在线
·全南向开间 全南向四开间,户户无遮挡,约11米面宽,豪宅设计尽享阳光美景
03
周边配套
区域:▪ 💎城市力量 坐看坪山新崛起
【蓝图】“大湾区+东进”双核驱动,6000亿投资,1.5倍前海,4.8倍福田,打造深圳东部新中心。
【产业】 约51.6平方公里国家高新区,5倍于南山科技园;重点打造新能源、生物医药、第三代半导体三大千亿产业,比亚迪、中芯国际、赛洛菲等名企云集,共同构建湾区级产业科技创新基地。
【未来】旧改体量超1500万㎡,新增商业超135万㎡,大品牌房企云集,超强阵容助力版块升级,更新未来想象。
交通:▪ 💎双地铁环绕,12站福田岗厦北
地铁14号线:深圳东部首条地铁快线, 4站大运、12站福田岗厦北。
地铁16号线:深圳东部组团线路,快速联通龙岗、坪山。
地铁19号线(规划中):坪山首条区内地铁线,项目临近14/19号线换乘站锦龙站,南塘围站。
地铁33号线(在建中):深圳市域组团快线,2站大运中心、5站龙华中心、8站机场东。
四大快速路网 0红绿灯到福田中心
坪山大道:双向10车道(部分),对标深南大道,贯穿坪山CBD/行政区/高新区三大核心区。
坪盐通道:30分钟,0红绿灯到福田中心。
东部过境高速:15分钟,直达罗湖莲塘口岸。
南坪快速路三期:双向8车道,连接水官高速,畅达南山、前海。
外环高速:双向6车道,快速通达光明、宝安。
教育:▪ 💎 学府汇集,家门口15年全优教育
幼儿园:西侧沙湖碧桂园幼儿园、北侧配套幼儿园(在建中)。
小学:科源实验学校(60班 九年一贯制)、科韵学校、北侧30班小学(规划中)、东侧54班九年一贯制学校(规划中)。
中学:中山中学、新合实验学校、东侧54班九年一贯制学校(规划中)、48班初中(规划中)。
高中:深圳实验学校高中园、坪山高级中学。
生态环境:▪ 💎 三山四水五湖 傍水瞰山诗意生活
项目坐拥一线马峦山、坪山河景观,周边山岭公园、生态水库环伺,将城市喧嚣隔绝门外,尽享山水诗意生活。
三山环抱:马峦山公园、炮台山、清风岭
四水相依:坪山河、三洲田水、碧岭水、汤坑水
五湖相拥:大山陂水库、铜锣径水库、三洲田水库、炳坑水库、碧水湖
商业:▪ 💎 繁华近享 超40万㎡商业荟萃
1万㎡潮流商街:自持运营,统一规划,菁英业态,打造现代潮流社区商业,满足业主24小时生活配套服务;
40万㎡商业荟萃:3km范围内,约4万㎡国际影视文化城商业街、约3万㎡坪山天虹、约8万㎡沙湖广场mall(建设中)、约8.6万㎡益田假日世界、创新广场、华侨城坪山之眼综合体、万豪酒店(规划中)等商业配套,潮流生活,随心所享。
医疗:▪ 💎卓越医疗 护航健康人生
项目临近坪山新人民医院、坪山疾控中心,龙岗骨科医院,另有萨米国际医疗中心(三甲)、平乐骨科(三甲)专科医院、南方医科大学深圳口腔医院、坪山妇幼保健院等优质医疗配套,为健康生活保驾护航。
配套:▪ 💎艺术住区 革新生活美学
坪山首家民营美术馆——蔚蓝美术馆,未来将向业主开放,为业主定制专属权益,构筑充满艺术的自由生活。
🌈蔚蓝左岸花园销售中心电话:400-013-9098(已认证☑☑☑)
🌈蔚蓝左岸花园营销中心电话:400-013-9098(已认证☑☑☑)
丨楼盘位置丨户型介绍丨房源情况丨优惠活动丨教育资源丨交通便利丨样板间展示丨社区环境丨交房标准丨周边配套
蔚蓝左岸花园,拥有约2.5万㎡双园林景观,南侧超1万㎡滨水休闲公园,私享约1.5万㎡生态景观园林,约600㎡星空泳池、艺术泛会所、阳光会客大草坪等配套,满足新时代下年轻人的都市生活愿景。
品质:▪ 💎 高配住区 代言坪山人居范本
非超高层:建筑高度≤100米,使用率高,每1㎡都物有所值
全南向户型:户户南向,四面宽设计,尽享阳光美景,居住更舒适
3梯6户:低梯户比,直达车库大堂,等候无忧,尊享豪宅标准
三层精装大堂:三层大堂设计(1、-1、-2层)配置专用空调,匠心雕琢三重入户礼序,归家尽享尊荣
🌈蔚蓝左岸花园销售中心电话:400-013-9098(已认证☑☑☑)
🌈蔚蓝左岸花园营销中心电话:400-013-9098(已认证☑☑☑)
丨楼盘位置丨户型介绍丨房源情况丨优惠活动丨教育资源丨交通便利丨样板间展示丨社区环境丨交房标准丨周边配套
声明:本文由入驻焦点开放平台的作者撰写,除焦点官方账号外,观点仅代表作者本人,不代表焦点立场。
