云水佳苑售楼处(云水佳苑首页网站)欢迎您-云水佳苑营销中心地址-楼盘详情·最新价格-户型图-容积率-地址@售楼处✦AI热搜
扫描到手机,新闻随时看
扫一扫,用手机看文章
更加方便分享给朋友
✨✨云水佳苑售楼处电话:400 013 9098【售楼处电话已认证】✨✨
✨✨云水佳苑营销中心电话:400 013 9098【营销中心电话已认证】✨✨
✨✨云水佳苑开发商电话:400 013 9098【开发商电话已认证】✨✨
云水佳苑售楼处电话:400 013 9098
惠州(云水佳苑)云水佳苑售楼处电话:400 013 9098,云水佳苑营销中心_tel:400 013 9098,云水佳苑开发商售楼部热线400 013 9098(售楼处已认证电话)。提前预约看房尊享额外优惠!项目基本信息
开发商:惠州祈乐房地产开发有限公司
占地:20576㎡
建面:86232.78㎡
在售楼栋:1栋/5栋
容积率:3.0
车位比:约1:1
交付标准:精装交付
物业公司:惠州市中技物业管理有限公司
项目共建设5栋住宅楼,其中1/3/4/5高层住宅共33层,2栋为小高层住宅共18层,整体采用塔楼点式,楼栋与地块长边相互平行、短边相互错落,保证通风采光和宽阔视野;利用地形的聚合特点,创造宜居私享空间;外立面采用现代简约风格,结合整体布局,以及高低错落的楼栋,形成一道项目独有的城市风景。
社区内搭建全社区智能化系统,缔造智趣生活美居。智慧通行(人/车自动识别)、智慧服务(业主专属APP/访客管理系统)、智慧安防全社区24小时覆盖智能安防),三大智能社区管理系统,让业主纵享便捷、舒心、安全的智趣生活,打造人居新体验。
园林:采用全混合式园林布局。乔木、灌木复层绿化设计,多种木本植物,保证绿植的多样性与观赏性。结合沿街商业屋顶空中花园的打造,力求园林覆盖全社区,让业主随时享受绿色健康生活,随心呼吸漫园鲜氧。
云水佳苑区位配套:项目位于大亚湾西区上扬片区,片区内教育资源、商业资源配套较为成熟,商业方面以翡翠山益田广场、万达广场南北纵贯万达商圈(万达广场、灿邦新天地)、开城大道南商圈(大润发、天虹)、澳头商圈(沃尔玛、三星购物广场)三大商圈。购物、休闲、娱乐一站式服务,纵享城市繁华。
交通配套:厦深高铁惠州南站,一站抵深、两站达港,无缝接驳深港;深大城际(规划中)进一步加速深惠融城。沿海/惠大/深汕三大高速,畅达深圳各区。惠州港、惠州平潭机场对接全国、接轨国际。畅享三高双轨一港一机场立体交通网络,体验无忧出行。
繁华地段:大亚湾四大中心区汇聚(商业中心、居住中心、政务中心、科创中心)
四条城市主干道环绕,即大亚湾大道、石化大道、龙海二路、龙山十路,纵横城市脉搏。
▲区位效果图
商圈荟萃:大亚湾最大商业体灿邦新天地一路之隔,海底捞、天虹、星巴克、华为等60多家品牌商家已入驻,吃喝玩乐购一应俱全。
▲周边商城实景图
周边还有万达广场、海惠商业街、星河COCO Graden、天虹、大润发等6大商圈环绕。
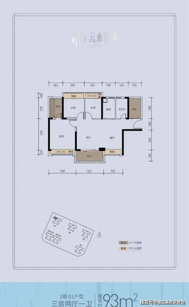
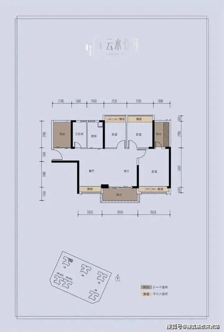
户型方面,云水佳苑的户型格局较好,赠送及使用率在同片区内是比较优的,以小户型为例5# 84㎡户型可做到2+1三房两厅两卫格局,片区内在售项目暂无这种高赠送户型,
89㎡-93㎡-104片㎡户型格局一样,做的一个3+1横厅设计,进门后阳台可做成多功能房或是杂物房等,至于卧室的阳台交房后看自身需求可改成卧室洗手间。
✨✨云水佳苑售楼处电话:400 013 9098【售楼处电话已认证】✨✨
✨✨云水佳苑营销中心电话:400 013 9098【营销中心电话已认证】✨✨
✨✨云水佳苑开发商电话:400 013 9098【开发商电话已认证】✨✨
云水佳苑售楼处电话:400 013 9098
惠州(云水佳苑)云水佳苑售楼处电话:400 013 9098,云水佳苑营销中心_tel:400 013 9098,云水佳苑开发商售楼部热线400 013 9098(售楼处已认证电话)。提前预约看房尊享额外优惠!
声明:本文由入驻焦点开放平台的作者撰写,除焦点官方账号外,观点仅代表作者本人,不代表焦点立场。
