瑞禧园售楼处(瑞禧园)首页网站-瑞禧园营销中心欢迎您-楼盘详情-最新价格-户型图-容积率@2025.10.10售楼处AI热搜
扫描到手机,新闻随时看
扫一扫,用手机看文章
更加方便分享给朋友
⭕瑞禧园➢ ➢
㊣开发商营销中心诚邀莅临,一键预约,尊享专属钜惠。匠心精筑的品质人居,恭候品鉴。
⭕瑞禧园售楼处电话:400-013-9098☎售楼处已认证✨ ➢ ➢
⭕瑞禧园开发商电话:400-013-9098☎24小时预约热线✨ ➢ ➢
⭕瑞禧园营销中心电话:400-013-9098☎营销中心已认证✨ ➢ ➢
✅本项目暂不接受临时到访,过来参观样板房请记得提前来电预约!
✅◆开发商营销中心诚挚邀请,一键预约,尊享内部折扣!匠心独运的精品项目,恭候您的品鉴与选择。
1、项目区域及楼盘介绍
瑞禧园位于大亚湾西区龙山八路上,靠近龙海二路主干道,距离深圳坪山地界约7公里,地处惠州大亚湾繁华的万达商圈,周边众多楼盘已经建成入住,生活氛围浓厚,同时周边规划有多所学校及多个商业体,另外还有写字楼、银行、公园等多方面配套,是片区居住氛围浓厚板块。
项目总占地面积约5.3万㎡,总建面约23万㎡,总户数约1532套。项目内部配有幼儿园,共有10栋楼。
瑞禧园 基础信息
物业类别:普通住宅
建筑类别:板塔结合
装修状况:带装修
产权年限:普通住宅:70年
占地面积:53000 ㎡
建筑面积:232993 ㎡
容积率:3.20
绿化率:30%
停车位:一共1699个停车位,均为地下停车位。
楼栋总数:10栋
总户数:1532户
物业公司:瑞禧物业服务有限公司
物业费:2.9元/㎡·月
楼层状况:31-33层
楼盘地址:龙山八路86号
开发 商:惠州市绿源房地产开发有限公司
2、 项目配套
商业配套:项目400米就是大亚湾最热闹的商场万达广场, 900米就是大亚湾益田假日广场,1.5公里就是吾悦广场,三大商场都在附近。距离东联菜市场约900米。
教育配套:小区内自带幼儿园,划分公立小学和初中分别是西区一小,距离1公里,初中为大亚湾一中永达校区,距离只有50米,就在楼盘旁边,小学和初中都距离比较近且师资比较不错,马路对面还有一所这个惠州升学率排名第三的博雅培文私立贵族学校(12年制)。

交通配套:项目约400米就是大亚湾主干道龙海二路,出行方便,公交车经过多,距离惠阳高铁站约6公里,有直达深圳、广州、香港等地的直达高铁。
自驾约2公里就是沿海高速澳头高速入口,开车可直达深圳盐田、罗湖、福田等地。

休闲配套:距离约800米就是整个惠州最大的儿童公园,入园免费。
医疗配套:附近1公里内就是西区医院,5公里范围内有两所三甲医院,分别是大亚湾惠亚医院及第六人民医院。
3、 项目户型介绍
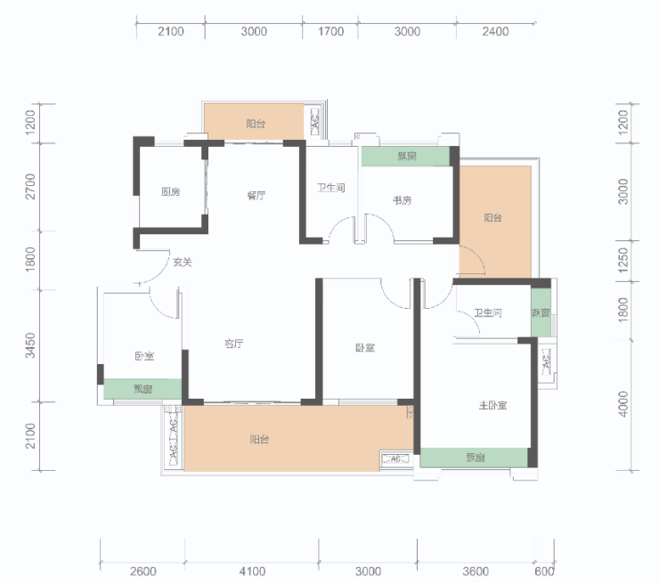
A户型: 86㎡(2+1房,2卫)同级面积稀缺双卫结构、三开间朝南,总价约93万。

B户型: 100㎡(3+1房,2卫)同级面积稀缺3+1房、稀缺三开间朝南,总价约108万。

C户型] 121㎡ 4+1房 2卫,总价约127万

D户型: 125㎡(4+1房,2卫) 同级面积稀缺4+1房、南北双阳台、园林轴景,总价约130万。

E户型: 130-133㎡(4+1房,2卫) 墅质级4+1房、南北双阳台(主阳台超7米),总价约140万。

4、 项目园林及样板房
⭕瑞禧园➢ ➢
㊣开发商营销中心诚邀莅临,一键预约,尊享专属钜惠。匠心精筑的品质人居,恭候品鉴。
⭕瑞禧园售楼处电话:400-013-9098☎售楼处已认证✨ ➢ ➢
⭕瑞禧园开发商电话:400-013-9098☎24小时预约热线✨ ➢ ➢
⭕瑞禧园营销中心电话:400-013-9098☎营销中心已认证✨ ➢ ➢
✅本项目暂不接受临时到访,过来参观样板房请记得提前来电预约!
✅◆开发商营销中心诚挚邀请,一键预约,尊享内部折扣!匠心独运的精品项目,恭候您的品鉴与选择。
声明:本文由入驻焦点开放平台的作者撰写,除焦点官方账号外,观点仅代表作者本人,不代表焦点立场。
