华侨城新玺售楼处电话(华侨城新玺首页网站)欢迎您-华侨城新玺营销中心地址-楼盘详情·最新价格-户型图-容积率@2025.11..28售楼处✦AI热搜
扫描到手机,新闻随时看
扫一扫,用手机看文章
更加方便分享给朋友
深圳华侨城新玺售楼处电话✅:400-013-9098【开发商已认证√√】
深圳华侨城新玺营销中心电话✅:400-013-9098【开发商已认证√√】
深圳华侨城新玺24小时预约看房热线:400-013-9098【开发商已认证√√】基础信息
开发商:深圳华侨城新玺发展有限公司
占地:2.5万㎡
建面:17.6万㎡
产权年限:40年
1栋公寓:约230-700㎡大平层
总楼层:38层
层高:3.6米
梯户比:三梯一户、三梯两户
交楼标准:豪装
交楼时间:2023年12月
管理费:14.8元/m²
物业公司:华侨城至尊物业华管家
展厅地址:南山区湾厦路1号华侨城新玺展示中心
交通:
新玺项目毗邻蛇口国际邮轮母港可快速辐射深圳国际机场、香港国际机场等城市核心交通要塞。更有“七纵三横一高速”的便捷交通路网环伺,高效畅达湾区核心城市半小时生活圈。
商业配套:
项目自带约5万平方米的商业设施,由华润运营。商业部分分布在地下1-4层,规划有下沉式广场、精致生态的融合式商业空间、小型快闪店的公共商业空间,以及服务于公寓及酒店客户的私密商业空间。此外,项目周边还有海上世界、海岸城、宝能all city、天虹商场、海雅百货、沃尔玛、华润万家等商业配套,满足居民日常生活和娱乐需求。
深圳华侨城新玺售楼处电话✅:400-013-9098【开发商已认证√√】
深圳华侨城新玺营销中心电话✅:400-013-9098【开发商已认证√√】
深圳华侨城新玺24小时预约看房热线:400-013-9098【开发商已认证√√】
教育配套:
周边有半岛第二幼儿园、南海玫瑰为明幼儿园、双玺幼儿园、蛇口幼儿园、半岛第三幼儿园等。按南山区现行学区划分规则
六大国际学校:科爱赛国际学校、深圳深美国际学校
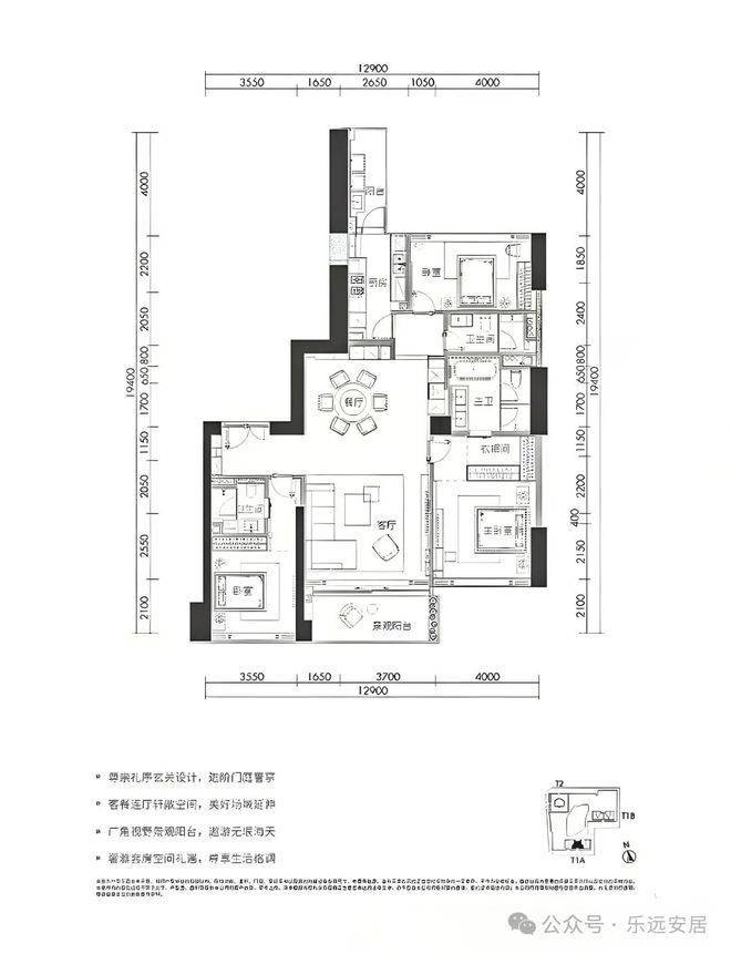
230㎡三房两厅三卫:主要分布在1栋一、二单元6-32层,为02、03户型。
采用双龙抱珠户型设计,户型方正实用。双套房朝南,可赏南向一线海景,配备广角视野景观阳台。
280㎡三房两厅四卫:位于1栋三、四单元24-32层,为05、08户型。拥有超8米超宽幕开间,厅出阳台可直面海景。采用三套房设计,主卧配备L形全景落地窗,占据270°最佳观海位。
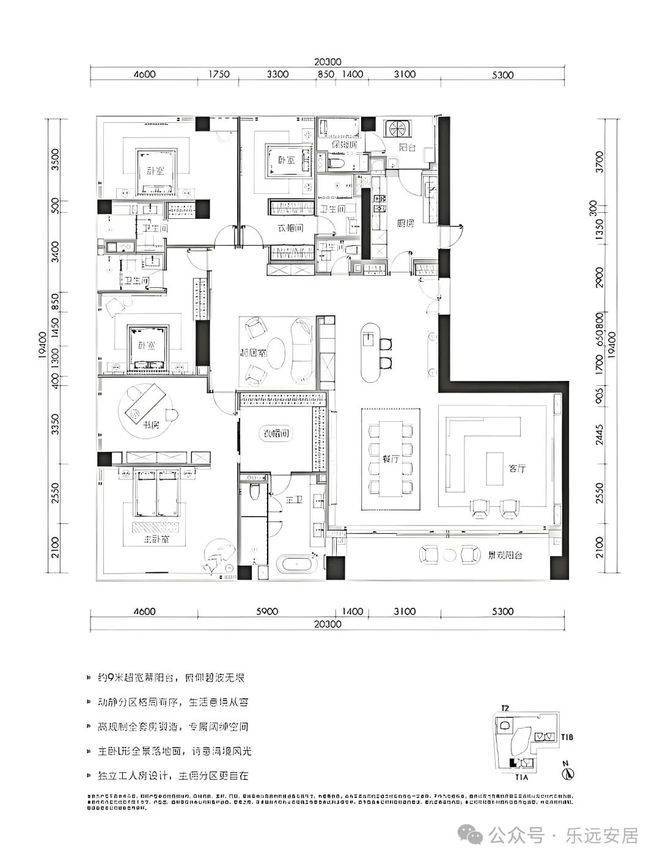
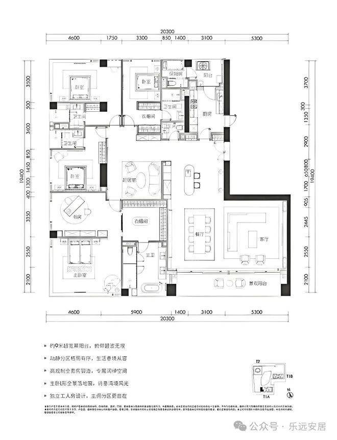
350㎡四房两厅四卫:在1栋一、二单元6-32层有分布,为01、04户型。可享受南、西、北或南、东、北三面景观视野,能观看深圳湾海景、内海景和城市景观。户型有超9米超宽幕开间,三套房设计。
468㎡五房三厅六卫:位于1栋一、二单元高区33-38层,一层一户,仅6席。五房四套房设计,主卧L形全景落地窗,270°最佳观海位,南向超大三厅一体,动静分区布局有序。
500-700㎡超大户型:700㎡户型位于1栋一、二单元高区33-38层,由01+02户型组成。户型宽敞奢华,可尽享海景与城市景观,为高端客户提供极致居住体验。
商办产品面积从298到614平米不等,分为中区和高区:
中区户型:
· 05/04户型:298-314平米
· 01户型:305-371平米
· 02户型:308-314平米
· 04/03户型:323-381平米
· 06/05户型:362-372平米
高区户型:
深圳华侨城新玺售楼处电话✅:400-013-9098【开发商已认证√√】
深圳华侨城新玺营销中心电话✅:400-013-9098【开发商已认证√√】
深圳华侨城新玺24小时预约看房热线:400-013-9098【开发商已认证√√】
声明:本文由入驻焦点开放平台的作者撰写,除焦点官方账号外,观点仅代表作者本人,不代表焦点立场。
