中山保利天汇左岸(售楼处)首页网站|保利天汇左岸欢迎您|地址_价格_户型_详情
扫描到手机,新闻随时看
扫一扫,用手机看文章
更加方便分享给朋友
中山保利天汇左岸
开发商售楼处24小时电话:400-013-9098【已认证】
欢迎来电咨询楼盘、看房请提前预约,电话预约看房享受专属优惠折扣。
保利天汇左岸售楼处电话:400-013-9098售楼中心,开发商线上售楼电话,楼盘项目全面介绍(包含楼盘简介,房价,价格,楼盘地址,户型图,交通规划,备案价,项目配套,楼盘详情,售楼处电话,最新消息,最新详情,周边配套,最新进展等详情咨询
保利天汇二期--左岸花园,位于深圳通道马鞍岛第一出口处1公里处,占据着得天独厚的地理位置,与深圳宝安一桥之隔。保利天汇左岸:全中山最近深圳!保利天字系平层,2T4户设计,通风采光极佳!北临翠湖公园,东望茅龙水道,位置优越!项目地处马鞍岛西三围,占据中山马鞍岛的中心,距离深中通道出口约1km(直线距离),约6km范围内可共享马鞍岛40所学校、7大文体配套、5大国际科教设施、6大医疗机构、6大商业娱乐目的地、7大生态景观带等超70+基础设施配套。


项目周边还有中山港新客运码头、两个广珠城轨站点(南朗站、翠亨站)、中山地铁2号线、4号线,还有广州地铁18号线延长线、深圳地铁33号线(规划)环绕。

核心区发达的交通路网不仅可提高出行效率,还可为城市发展提供原动力,也是加速区域发展的重要助推器!随着城市的发展,交通路网发达的核心区往往拥有更大的价值提升空间。
亮点二:毗邻茅龙水道,占据一线滨河景观。保利天汇|左岸毗邻茅龙水道,占据一线滨河景观。值得一提的是,茅龙水道的水是由伶仃洋引入的活水,纯天然优越水景资源不可复制,且可享受24小时清新鲜氧。咨询热线:15012627238 蔡经理
一线水景除了居住的舒适性还有物业价值的提升,比如:上海浦东的汤臣一品、深圳后海的深圳湾1号、广州珠江新城的侨鑫汇悦台,都是因为拥有稀缺的江河景观资源,房子居住价值高于片区平均。保利天汇|左岸同样坐拥一线滨河景观,据说高层还能够望伶仃洋和深中通道,值得期待。亮点三:临近翠湖公园,坐享绝佳公园生态景观。保利天汇|左岸还临近占地约500亩的翠湖公园,坐享翠湖公园绝佳生态景观。核心区坐享公园生态景观的物业,往往更受精英青睐,形成圈层效应。比如:

纽约曼哈顿的57街地标性建筑One57位于纽约广场区中心,坐落纽约中央公园中轴线上;中央公园、哈德逊河等景观皆可尽收眼底。全球不少亿万富豪持有One57的物业:比如卡塔尔首相、SOHO中国的潘石屹、张欣夫妇、Michael Kors大股东等。
海德公园位于英国伦敦中心旁的骑士桥附近,占据了城市核心,还有泰晤士河等,坐享得天独厚的地理资源。根据《名利场》曾公开的信息,伦敦海德公园聚集如乌克兰首富;卡塔尔首相;俄罗斯石油大亨等富豪,还有不少来自还有来自中国的神秘买家。
保利天汇|左岸位于马鞍岛核心,坐拥翠湖公园绝佳生态景观,其圈层效应未来将给片区赋能,助力片区崛起!亮点四:保利“天字系”产品,中山首个“WELL集和社区”保利天汇|左岸外立面采用现代主义设计风格,项目整体坐北朝南,由10栋住宅及周边公建配套所组成。整体建筑采用点阵式布局,可保障户户朝南,通风采光最大化,同时运用围合中央景观活动中心园林,自东向西四大布局十大主题,打造两环、一心、六大功能空间,满足全龄段业主需求。社区内部还涵盖星光健康跑道、阳光泳池、全龄活动空间及邻里共享空间等功能区域,提升精英业主生活品质。


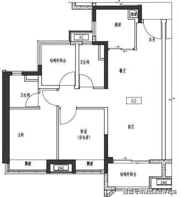
在户型设计上,保利天汇|左岸打造的是全中山距离深圳最近的保利天字系平层,户型涵盖约 90-117平创意空间,满足个性化需求,投资自住两相宜。此外,采用2梯4户设计,全南向蝶形设计,通风采光极佳。亮点五:从幼儿园到小学、中学,12年一站式教育配套应有尽有。此外,保利天汇|左岸西面紧靠中小学预留用地,距离项目10分钟车程处有已开学的中山纪念小学、翠亨重点中学等(计划将于2年后开学),12年一站式教育配套一步配齐。03. 开盘即售罄2021年6月1日,马鞍岛保利天汇左岸正式开盘。早上10点,项目开启线上抢房,仅过去45秒,126套房源便被全部秒杀。开盘即售罄,跑出了马鞍岛的热销节奏!此前,保利天汇左岸认筹客户共775个,本次开盘约等于7个人抢1套房,可谓是相当抢手。保利天汇左岸,是中山保利在马鞍岛献上的又一“天”字系名作,代表着占据一城核心资源的匠心之作,因为稀缺,所以珍贵。保利天汇左岸,领潮深中高品质人居。保利天汇左岸住宅单位,此前曾公布89-115㎡三四房单位户型图,其中89㎡、98㎡为2+1房,106㎡、115㎡为3+1房,均为带装单位。



89㎡2+1房
98㎡2+1房
106㎡3+1房
中山保利天汇左岸
开发商售楼处24小时电话:400-013-9098【已认证】
欢迎来电咨询楼盘、看房请提前预约,电话预约看房享受专属优惠折扣。
保利天汇左岸售楼处电话:400-013-9098售楼中心,开发商线上售楼电话,楼盘项目全面介绍(包含楼盘简介,房价,价格,楼盘地址,户型图,交通规划,备案价,项目配套,楼盘详情,售楼处电话,最新消息,最新详情,周边配套,最新进展等详情咨询
声明:本文由入驻焦点开放平台的作者撰写,除焦点官方账号外,观点仅代表作者本人,不代表焦点立场。
