深圳开云府(售楼处)-深圳开云府销售中心(营销中心)-深圳开云府楼盘欢迎您-小区环境-户型-价格-地址-楼盘详情-售楼处电话-交房时间
扫描到手机,新闻随时看
扫一扫,用手机看文章
更加方便分享给朋友
⭕开云府售楼处电话:400-013-9098(工作日9:00-18:00周末无休)🍂
⭕开云府营销中心电话:400-013-9098(可直接咨询房源动态、活动详情)🍂
⭕开云府售楼中心热线:400-013-9098(开发商直连,解答项目规划、购房政策等问题)🍂
注:以上三组电话均为同一服务热线,拨打后根据语音提示转接对应部门,无需重复记录!
开云府坐落于深圳南山区招商街道赤湾片区,正处东连蛇口、西接前海的核心节点,承接深圳湾、太子湾、前海湾三湾资源覆盖,叠加湾区、特区、示范区、自贸区四重国家战略利好。作为赤湾片区首个地标综合体,项目占据“蛇口国际海洋城”发展红利,周边规划超200万方赤湾海洋科技产业园,未来人居与投资价值潜力显著。
基础信息
占地面积:约3.4万㎡
建筑面积:约32万㎡
绿化率:30%
业态:住宅、商业、写字楼等业态
可售住宅:418户
物业费:6.9元/㎡/月
车位数:1346(专享地上车位:460个,综合地下车位:886个 )
车位比:约1:1.1
梯户比:T1栋4梯6户,T2栋4梯4户
交房时间:2025年9月30日精装交付
片区运营开发商:中国南山开发(集团)股份有限公司
【中国南山品牌主场 迭新湾区4.0】中国南山,深耕赤湾43载,以片区运营者角色,迭新赤湾约3.2平方公里土地,建面约47.7万方滨海TOD综合体(含总部办公、购物中心、高端住宅等)。
【交通出行】
无缝接驳地铁2/5号线“赤湾站”,地铁12号线环绕;连接兴海大道、南海大道、望海路、妈湾跨海通道等多条城市主干道,畅达前海、太子湾、海上世界、后海等核心区,高效通达全城;紧邻太子湾邮轮母港,速抵深圳宝安国际机场,链接世界精彩。
【商业配套】
私享大型集中式商业赤湾汇购物中心,更享太子湾K11 (在建中)、香港兰桂坊LKF、前海世茂中心、桂湾商业中心、前海印里、华润万象前海、前海卓悦INTOWN、壹方汇等高端商业,荟萃太子湾、海上世界、前海万象三大国际商圈。约百万方璀璨繁华,纳世界潮流为生活日常。周边南二外赤湾学校、市三十高中(规划中)等学府环伺,与赤湾国际化学校、太子湾学校、科爱赛学校、深美国际化学校等国际化学校为邻,南山集团幼儿园、蓓蕾幼儿园等在旁。集萃国内教育+国际视野的全龄优质学府资源,为未来先行一步。
【教育】周边南二外赤湾学校、市三十高中(规划中)等学府环伺,与赤湾国际化学校、太子湾学校、科爱赛学校、深美国际化学校等国际化学校为邻,南山集团幼儿园、蓓蕾幼儿园等在旁。集萃国内教育+国际视野的全龄优质学府资源,为未来先行一步。
【休闲配套】
生态方面:背靠大南山,肩倚小南山、赤湾山,相望伶仃洋,山海日常推窗可得;毗邻深圳华英路樱花主题公园,领略治愈时光的城市符号;更享赤湾公园、大/小南山公园等多所公园环绕,悠享生态鲜氧生活。
文体方面:赤湾,以获评“广东十大海上丝绸之路文化地理坐标”为契机,打造赤湾文博圈,天后博物馆(赤湾天后宫)、赤湾烟墩、左炮台等高密度历史人文资源集群。
作为南山区十四五示范工程——深圳湾文化走廊的重要组成部分,进一步传承历史文脉,成就大湾区海洋文化展示地。
【甄稀山海高品质准现房 一线海幕臻邸】匠筑建面约124-203㎡全生命周期天幕户型,360°采光通风,270°环景主卧,山海日常推窗可得。背山面海,藏风聚气,家宅福泽之地,实景已呈,交付在即。
生态园林:以“空中连廊+屋顶花园”打造垂直化多元生态系统,让自然、空间回归生活
全龄场景:搭建观景/室外聚会/游乐/成人活动等场景化空间,演绎高端富氧休闲体验美学立面:精铸“海浪”风尚立面,呈现微波般浮雕感,臻选哈利法塔同款金晶白玻
高梯户比:4T4/4T6户近1:1高配级别梯户比,出入尽享便捷,生活愈加舒适
阳光车库:罕见全地上阳光车库,车位配比超1:1.1,归家尊享从容泊车
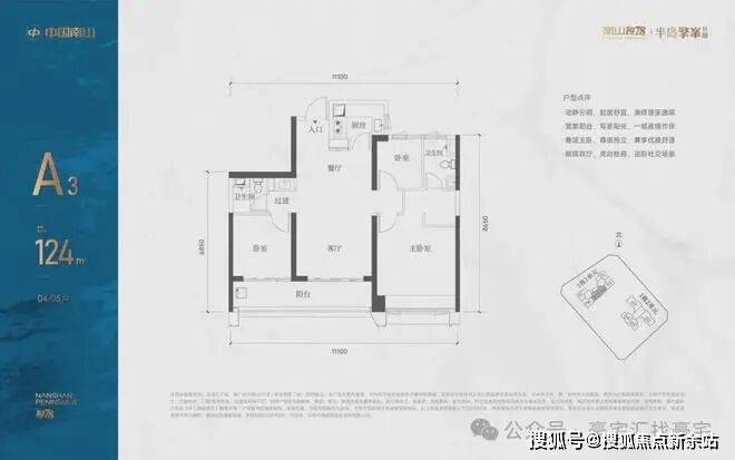
户型鉴赏
1栋一单元A1、A2户型:约129㎡
1栋一单元A3户型:约124㎡
1栋二单元B1户型:约203㎡
⭕开云府售楼处电话:400-013-9098(工作日9:00-18:00周末无休)🍂
⭕开云府营销中心电话:400-013-9098(可直接咨询房源动态、活动详情)🍂
⭕开云府售楼中心热线:400-013-9098(开发商直连,解答项目规划、购房政策等问题)🍂
注:以上三组电话均为同一服务热线,拨打后根据语音提示转接对应部门,无需重复记录!
声明:本文由入驻焦点开放平台的作者撰写,除焦点官方账号外,观点仅代表作者本人,不代表焦点立场。
