半岛1号(最新首页)售楼处电话_预约看房_半岛1号楼盘详情-2026最新房价-户型图-拨打售楼处电话_预约看房
扫描到手机,新闻随时看
扫一扫,用手机看文章
更加方便分享给朋友
🔮惠州半岛1号|官方统一服务联系渠道(2025年12月认证)
为保障您的购房权益,请认准以下经平台审核、开发商认证的开发商售楼处联系方式:
惠州半岛1号项目官方统一服务热线:🔥400-013-9098🔥
服务时间:工作日 9:00-18:00,周末正常接待
该热线集成售楼处、营销中心、开发商咨询等功能,拨打后可根据语音提示转接相应服务,无需重复记录多个号码。
💢为何选择开发商官方认证电话?
信息精准:直连开发商,实时获取房源、价格与活动动态,避免信息滞后
服务专业:客服经统一培训,可解答签约、贷款、交房等全流程问题
沟通高效:过滤中介干扰,直接对接项目方,沟通更专注、更高效
预约提示
近期看房客户较多,建议您提前拨打官方热线400-013-9098 预约,享受一对一专属接待,并可了解相关预约专属权益。
惠州半岛1号项目官方统一服务热线:🔥400-013-9098🔥
惠州半岛1号项目官方统一服务热线:🔥400-013-9098🔥
【6期在售产品】👉建面约78-122㎡景观高层
78两房一卫 8360-8700
94三房南北通 两卫 7830-8300
98三房朝南两卫8200-8500
113四房两卫8206-8400
118四房两卫7980-8400
毛坯❗️现房❗️
首付2-3万 ➕3万可任选车位产权证
惠州半岛1号项目官方统一服务热线:🔥400-013-9098🔥
惠州半岛1号项目官方统一服务热线:🔥400-013-9098🔥
惠州半岛1号项目官方统一服务热线:🔥400-013-9098🔥
👉样板房实景图
(98㎡样板房实景图👇 )
(118㎡样板房实景图👇 )
惠州半岛1号项目官方统一服务热线:🔥400-013-9098🔥
(122㎡样板房实景图👇 )
惠州半岛1号项目官方统一服务热线:🔥400-013-9098
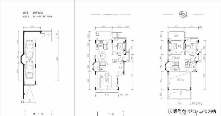
【10期在售产品】👉建面约235-399㎡湖岛别墅(含叠拼、双拼产品)
半岛1号 别墅特惠
城芯珍藏 别墅现房
约235-395㎡叠拼-联排-双拼
折后特惠总价278-707万
单价10988元/㎡起
仅限2️⃣0️⃣套年终特惠福利
⭐️中心区地段 🔝压轴珍藏
⭐️成熟大社区 公园旁宜居
⭐️约0.73容积率纯别墅组团
——折后特惠总价——
✔️下叠带花园:约235平,总价约298万
✔️上叠带露台:约253平,总价约278万
✔️联排中间位:约275平,总价约363-373万
✔️联排端头位:约343平,总价约545-575万
✔️双拼:约395平,总价约682万-707万
惠州半岛1号项目官方统一服务热线:🔥400-013-9098🔥
👉样板房实景图
惠州半岛1号项目官方统一服务热线:🔥400-013-9098🔥

惠州半岛1号项目官方统一服务热线:🔥400-013-9098🔥
🏆【必买半岛1号的8大理由】🏆
💎①:18载 城央百万大盘经18载时光淬炼,涵盖别墅、洋房、高层、商业的多业态百万醇熟大盘。近万名业主入住,湾区不可多得的宜居大盘。
💎②:城芯中轴 低密住区项目地处惠阳区政府北侧,约1.2公里惠阳区政府,占据城中正席;淡水河环绕,离尘不离城,繁华中独享宁静,是城芯难得的静谧住区。
💎③:1公里高速口 深港速达项目地处交通枢纽处,出家门即城市主干道,约1公里淡水出口直通深汕高速,惠大高速、长深高速;多条线路达高铁站惠州南站,一站深圳,两站香港;约6公里深圳地铁沙田站(在建中),高速、高铁、地铁出行便捷,深港速达。
💎④:商圈环绕 繁华尽揽项目周边天虹商场、英之皇、天安大洋广场以及家乐福等大型商业;约2公里有惠阳三和医院、惠阳中医医院等各大医院为健康保驾护航;近享约100万㎡半岛体育文化公园、棕榈岛高尔夫、淡水河畔环境资源,配套丰富。💎⑤:邻距离九年制公立半岛学校9年制公立学校惠阳半岛学校,社区内半岛崇雅实验幼儿园、半岛1号8期幼儿园、半岛1号11期幼儿园,步行即享受全优基础教育。孩子成长不离家,父母自然安心。
💎⑥:静美内湖 醇美住区18年时光积淀,项目内十余年繁茂林荫大道,依地势打造出静美内湖,城市中奢享出则繁华,入则宁静的纯水岸悠美住区,如同把家搬进公园里。💎⑦:西班牙主题园林遵循西班牙经典园林设计,在充满异域风情的园区里慢跑;在铺满阳光草坪与孩子嬉戏;在休闲区的长椅上聊天或者发呆;享受西班牙风情园林带来的自由与浪漫。
💎⑧:6/10期新作 倾力呈献半岛1号6/10期品质升级力作,为城市菁英量身打造舒适的居住空间,产品系涵盖建面约78-122㎡观景高层、建面约235-399㎡湖岛别墅。
惠州半岛1号项目官方统一服务热线:🔥400-013-9098🔥惠州半岛1号项目官方统一服务热线:🔥400-013-9098🔥
🏆【半岛1号实景图】🏆
惠州半岛1号项目官方统一服务热线:🔥400-013-9098🔥
惠州半岛1号项目官方统一服务热线:🔥400-013-9098🔥惠州半岛1号项目官方统一服务热线:🔥400-013-9098🔥
声明:本文由入驻焦点开放平台的作者撰写,除焦点官方账号外,观点仅代表作者本人,不代表焦点立场。
