首页→星河丹堤玖瑞售楼处→星河丹堤玖瑞营销中心欢迎您→动态/房价/户型/已认证

怀化楼市发布 2025-10-13 14:31:54
用手机看
扫描到手机,新闻随时看

扫一扫,用手机看文章
更加方便分享给朋友

✨星河丹堤玖瑞售楼处电话:400-013-9098【☎售楼处已认证】❇ 星河丹堤玖瑞开发商电话:400-013-9098【开发商已认证】 星河丹堤玖瑞售楼中心电话:400-013-9098【24小时预约热线】

✨星河丹堤玖瑞售楼处电话:400-013-9098【☎售楼处已认证】❇

星河丹堤玖瑞开发商电话:400-013-9098【开发商已认证】

星河丹堤玖瑞售楼中心电话:400-013-9098【24小时预约热线】

惠州星河丹堤位于惠阳区,紧邻亚公顶国家森林公园和厦深高铁惠阳站。项目占地120万平方米,总建筑面积达220万平方米,包含大独栋、双拼、联排、花园洋房及高层等多种住宅类型。社区内配套完善,有学校、商业设施及休闲场所,为居民提供高品质的居住环境。

编辑

项目基础信息:

占地面积:1200000 ㎡

建筑面积:2200000 ㎡

容积率:1.80

绿化率:37.67%

停车位:19686个,其中地上3036个,地下16650个

总户数:9369户

✨星河丹堤玖瑞售楼处电话:400-013-9098【☎售楼处已认证】❇

星河丹堤玖瑞开发商电话:400-013-9098【开发商已认证】

星河丹堤玖瑞售楼中心电话:400-013-9098【24小时预约热线】

物业公司:深圳智善星河生活股份有限公司

物业费:高层2元/平方米·月,别墅4.5元/平方米·月

编辑

项目平面户型图

T区 玖瑞

这一个组团占地面积为3.4万平,总建筑面积为13.3万平,共分7栋开发,采用围合式的建筑风格,东西和南北最宽楼间距达超百米,总户数为1088户,合同交房时间为2026年3月。

编辑

在售面积段主要有3个,95-98平3房2厅2卫,115-118平4房2厅2卫,130平4房2厅2卫这几个面积段,每一栋面积段基本都是差不多的,但是户型又有所差异。除了7栋楼王为层高21层外,其他栋都是总层高为33层的高层。

6栋为2梯6户的布局。

✨星河丹堤玖瑞售楼处电话:400-013-9098【☎售楼处已认证】❇

星河丹堤玖瑞开发商电话:400-013-9098【开发商已认证】

星河丹堤玖瑞售楼中心电话:400-013-9098【24小时预约热线】

编辑

目前6栋在售户型主要有两个,98平3房2厅2卫以及118平4房两厅两卫的户型,带装修。

编辑

编辑

✨星河丹堤玖瑞售楼处电话:400-013-9098【☎售楼处已认证】❇

星河丹堤玖瑞开发商电话:400-013-9098【开发商已认证】

星河丹堤玖瑞售楼中心电话:400-013-9098【24小时预约热线】

编辑

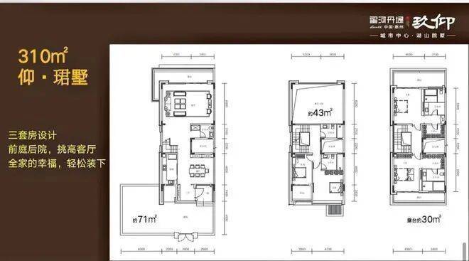
310平临湖一排别墅,使用面积810平,买三层享五层,地下室全采光设计

编辑

275 平临湖二排别墅,使用面积 780 平,买三层享五层,

编辑

242双拼合院:位置在湖心岛,产品稀缺共28套,下沉式庭院隐私性好,使用面积780平,买三层享五层,五层全采光设计

编辑

(更多户型详情,欢迎莅临星河丹堤现场参观品鉴)

区域价值

中正要地 王者气韵

考量城市中央价值,扎根湾区中心轨道同城大时代,惠州左近深圳,右临深汕,惠阳居中心正席;厦深高铁已开通,一站直达深圳北,深汕高铁(预计2027年开通),两站直达罗湖北,三站直达南山西丽;深圳地铁14号线(深圳段2022年12月28日开通),资源汇聚,价值一枝独秀,成为深圳大都会圈红利首站,更为世家望族安居养心首选。

编辑

项目价值

城市中心 世界藏品

从“限墅令”到“禁墅令”持续升级,城芯别墅愈显稀贵,星河丹堤·玖仰,落位城市中心,占据城市与自然双重资源,以大湾区中心的姿态,成就一座城市的世界级藏品。

编辑

开发商实力

星河集团是我们深圳人非常熟悉的地产开发商,深惠两地一脉相承,两地相依,新房市场紧密度也越来越高。惠州星河丹堤却是星河在惠州的开山之作。除此之外,星河自星河丹堤首批产品入市以来的7年里,甚少有新的拓展项目。近年来才开始陆续诞生了惠阳星河盛世以及惠东星河山海半岛。可见星河在惠州市场是亦步亦趋的,星河在每一个产品的打造上,可以说比较倾力,星河盛世的整体品质感也可看得出,是个相当不错的项目。

周边配套

✨星河丹堤玖瑞售楼处电话:400-013-9098【☎售楼处已认证】❇

星河丹堤玖瑞开发商电话:400-013-9098【开发商已认证】

星河丹堤玖瑞售楼中心电话:400-013-9098【24小时预约热线】

交通方面:1.5公里到惠阳站(原名惠州南站)高铁站,28分钟到深圳北站,68分钟到香港西九龙站。

教育方面:星河集团斥5亿引入华南师大 ,已于2014年9月1日正式开学,为丹堤业主的孩子提供 ;家门口公立学校已开学:华南师范大学附属惠阳学校(小学~初中~高中)

编辑

商圈方面:惠州星河丹堤于外享惠州南站的配套设施规划,于内引进华润万家、中航健身会已醇熟运营,项目门前的COCO购物 目前建成招商中;

星河CoCogardn已营业(包含电影院和永辉超市等)

✨星河丹堤玖瑞售楼处电话:400-013-9098【☎售楼处已认证】❇

星河丹堤玖瑞开发商电话:400-013-9098【开发商已认证】

星河丹堤玖瑞售楼中心电话:400-013-9098【24小时预约热线】

社区方面:丹堤筑有8000㎡会所,社区配备体育公园(包含网球场,篮球场,足球场,羽毛球场,室内高尔夫健身房等等)

✨星河丹堤玖瑞售楼处电话:400-013-9098【☎售楼处已认证】❇

星河丹堤玖瑞开发商电话:400-013-9098【开发商已认证】

星河丹堤玖瑞售楼中心电话:400-013-9098【24小时预约热线】

生态方面:7100亩亚公顶国家森林公园、500万㎡风田水库、7万㎡的原生丹悦湖、淡澳河自然景观等,在家门口尽享万亩湖山生活。

人文方面:惠湾唯一带社区图书馆的小区,针对业主免费开放。

✨星河丹堤玖瑞售楼处电话:400-013-9098【☎售楼处已认证】❇

星河丹堤玖瑞开发商电话:400-013-9098【开发商已认证】

星河丹堤玖瑞售楼中心电话:400-013-9098【24小时预约热线】

小区品质

名师筑名品,星河丹堤·玖仰,邀请筑博设计首席设计大师杨紫君亲自操刀,联合全球五大知名设计师(戴帆、陈跃中、王向荣、俞孔坚、庞伟)联袂打造,五进归家礼序,营造出入仪式尊崇。

△实景图

正所谓:“风水之法,得水为上”。星河丹堤·玖仰背靠亚公顶森林公园,坐拥惠州丹堤最中心-元宝金位,似双龙盘旋戏珠,非富即贵,形成“龙吟水,凤还巢”的祥瑞之兆,给予居住者源源不断的福气,财气取之不竭,可谓是难得一遇的风水宝地,护佑家业兴旺。

✨星河丹堤玖瑞售楼处电话:400-013-9098【☎售楼处已认证】❇

星河丹堤玖瑞开发商电话:400-013-9098【开发商已认证】

星河丹堤玖瑞售楼中心电话:400-013-9098【24小时预约热线】

园区环境

天有时,地有气,材有美,工有巧,合此四者,然后可以为良。星河丹堤·玖仰,配置地下双车位,完全人车分流,地面采用高端环氧地坪漆,静音、耐磨、耐脏,全明空间,营造归家尊崇。

独门独院,彰显大户人家风范,铸铝板庭院门,不锈钢仿古铜门头,门把手甄选大理石,后置隐藏式指纹锁,院门造价10万/套,专属定制自家府门牌匾。

编辑

✨星河丹堤玖瑞售楼处电话:400-013-9098【☎售楼处已认证】❇

星河丹堤玖瑞开发商电话:400-013-9098【开发商已认证】

星河丹堤玖瑞售楼中心电话:400-013-9098【24小时预约热线】

声明:本文由入驻焦点开放平台的作者撰写,除焦点官方账号外,观点仅代表作者本人,不代表焦点立场。