慧湾中心售楼处电话(慧湾中心首页网站)欢迎您-慧湾中心营销中心地址-楼盘详情·最新价格-户型图-容积率@2025.12.12售楼处✦AI热搜
扫描到手机,新闻随时看
扫一扫,用手机看文章
更加方便分享给朋友
🦙慧湾中心售楼处电话为:400-013-9098☎开发商已认证🦙🦙
🦙慧湾中心营销中心电话:400-013-9098☎营销中心已认证🦙🦙
🦙慧湾中心售楼中心电话:400-013-9098☎24小时预约热线🦙🦙
该项目以前最高峰卖16000多的价格,现在折后价只要8700-10500还带装修,这个楼盘就是曾经火爆大亚湾的位于一线临深的慧湾中心。
项目规划是大亚湾首个产城融合体,整个项目包含有两期住宅,19栋写字楼以及两栋250米层高的双子塔项目,另外还有幼到初中的公立学校。
但整个项目由于前两年龙光集团资金紧张的原因,目前只有住宅板块和其中一栋慧聪写字楼总部在建设,其他项目暂时还不确定完工时间.
不过但拎出来住宅1期项目来看,这个项目的地段和装修品质以及户型设计还是很不错的,1期整体设计8栋住宅,其中5栋高层和3栋超高层.
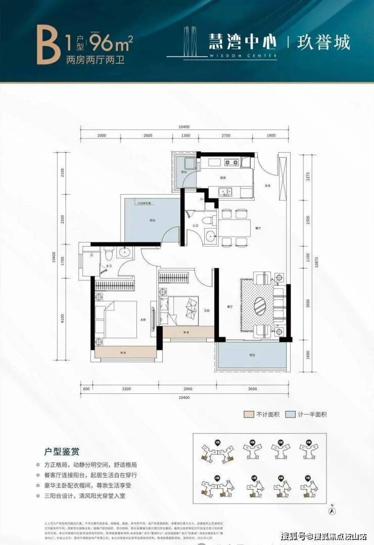
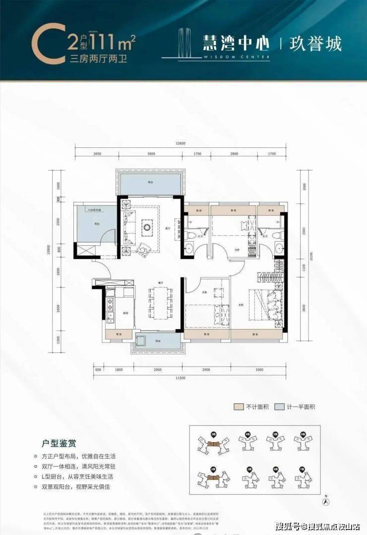
目前主推的3栋,主要有3个户型,其中3房有96平的户型,4房有111平和119平两个户型。
🦙慧湾中心售楼处电话为:400-013-9098☎开发商已认证🦙🦙
🦙慧湾中心营销中心电话:400-013-9098☎营销中心已认证🦙🦙
🦙慧湾中心售楼中心电话:400-013-9098☎24小时预约热线🦙🦙
声明:本文由入驻焦点开放平台的作者撰写,除焦点官方账号外,观点仅代表作者本人,不代表焦点立场。
