牧云溪谷(售楼处)首页网站(深圳)牧云溪谷配套_房价_户型_详情
扫描到手机,新闻随时看
扫一扫,用手机看文章
更加方便分享给朋友
牧云溪谷售楼处电话:400-013-9098(官方认证)
牧云溪谷营销中心电话:400-013-9098(官方认证)
牧云溪谷开发商电话:400-013-9098(官方认证)
牧云溪谷展示中心电话:400-013-9098(官方认证)
牧云溪谷位于惠阳新圩龙岗大道旁,与龙岗坪地一路之隔。小区建筑面积达 400 多万平,是一个历经近 10 年开发的成熟大型社区。该项目规划丰富,涵盖山湖别墅、高端住宅、约 1.9 万平星级精品酒店、约 7600 平私家会所等多种业态。内部配套完善,有 1.6 万平的天然湖泊、牧云会馆会所、星级酒店、健康服务中心、云美术馆等设施。商业方面,5500㎡香缤谷水岸风情商业街和约 26 万㎡牧云天地 Mall 等已吸引麦当劳、肯德基、星巴克等知名品牌入驻,能一站式满足业主生活所需。
一、毓山郡·和院基础信息
本期占地:约7.69万㎡
本期总建面:约20.15万㎡
容积率:约1.48
绿化率:35%
户数:别墅130户
产品:175㎡-301㎡(大双拼:290-301㎡、小双拼233-239㎡、联排175-178㎡)
物业费:和院5.5元/㎡/月
交付标准:和院(毛坯)
入伙时间:2025年3月
教育配套:华中师范大学附属惠阳学校、新圩第二中学及附属小学、爱馨云峯幼儿园
【大城核芯臻品 十载时光倾心著作】
十年精华“毓山郡”,以得天独厚的地理优势应运而生,位处百万大城核芯之上,静谧尊邸,典藏一方美景,享悠然雅致生活。
牧云溪谷售楼处电话:400-013-9098(官方认证)
牧云溪谷营销中心电话:400-013-9098(官方认证)
牧云溪谷开发商电话:400-013-9098(官方认证)
牧云溪谷展示中心电话:400-013-9098(官方认证)
【城市创新墅院 生活的理想之地】
创新型和院别墅,独创有天有地的大城小院空间,从东方院落情怀为序,于百万山湖大城深处建一方院落,“城中有园,园中有屋, 屋中有院”的美好渴望。
【层峦叠嶂园林绿化 尽享富氧生活】
⚜宋风雅韵,蜿蜒成诗。利用高差塑造多层次景观组团,一轴中心景观带分布水景、廊架、回廊、下沉式等精致小景,在移步异景中诠释中式园林精髓。

牧云溪谷售楼处电话:400-013-9098(官方认证)
牧云溪谷营销中心电话:400-013-9098(官方认证)
牧云溪谷开发商电话:400-013-9098(官方认证)
牧云溪谷展示中心电话:400-013-9098(官方认证)
【户型品鉴】首推毓山郡·和院56套,产品约175-301㎡(地下2层,地上3层)
✅户型1:大双拼
建面约292㎡,折后总价约1000万起,总赠送约750㎡,总面积达1000㎡,
赠送率超260%,花园面积约200㎡
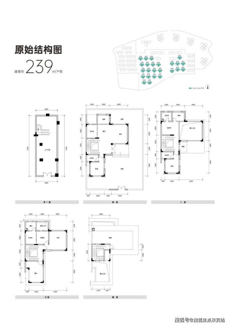
✅户型2:小双拼
建面约239㎡,折后总价约580万起
总赠送约560㎡,总面积达800㎡,赠送率超250%,花园面积约180㎡
✅户型3:联排
建面约175㎡,折后总价约380万起
端头位:总赠送约270㎡,总面积达450㎡,赠送率160%;花园面积约100㎡
中间位:建筑总赠送210㎡,总面积达380㎡,赠送率超120%,花园面积约70㎡
点击添加图片描述(最多60个字) 编辑
牧云溪谷售楼处电话:400-013-9098(官方认证)
牧云溪谷营销中心电话:400-013-9098(官方认证)
牧云溪谷开发商电话:400-013-9098(官方认证)
牧云溪谷展示中心电话:400-013-9098(官方认证)
二、牧云溪谷大城介绍
【世界湾区的“一小时都市生活圈”】
🔹世界级粤港澳大湾区,未来十年的世界第一大湾区。近享国际低碳城与碧桂园梅龙湖产业园等产业支撑,享双重发展利好。
【三线三轨道 多维交通体系畅通畅行】
踞守龙岗大道旁,经盐龙大道连接水官高速,经深圳外环高速畅达南山与宝安,快速链接龙岗中心城与福田;
距离地铁3号线延长线六联站(建设中,预计2025年通车)直线距离约2km,地铁21号线(规划中)、深惠城轨惠州段(规划中);
牧云溪谷售楼处电话:400-013-9098(官方认证)
牧云溪谷营销中心电话:400-013-9098(官方认证)
牧云溪谷开发商电话:400-013-9098(官方认证)
牧云溪谷展示中心电话:400-013-9098(官方认证)
声明:本文由入驻焦点开放平台的作者撰写,除焦点官方账号外,观点仅代表作者本人,不代表焦点立场。
