华侨城宝辰(深圳)售楼处电话_预约看房_楼盘详情-2025最新房价-户型图(深圳新房)华侨城宝辰售楼处电话_预约看房

怀化楼市发布 2025-10-04 22:01:00
用手机看
扫描到手机,新闻随时看

扫一扫,用手机看文章
更加方便分享给朋友

⭕华侨城宝辰售楼处电话:400-013-9098☎☎开发商已认证 ⭕华侨城宝辰营销中心电话: 400-013-9098☎☎营销中心已认证 ⭕华侨城宝辰售楼中心电话: 400-013-9098☎☎24小时预约热线

华侨城宝辰售楼处电话✅:400-013-9098✅✅

华侨城宝辰售楼中心电话✅:400-013-9098✅✅

案场预约制看房需提前来电预约登记

一、以下是销售部核心联系方式(认证)

为保障购房权益,以下为项目认证电话,均经平台严格审核,信息真实有效:

· •华侨城宝辰售楼处电话:400-013-9098(工作日9:00-18:00周末无休)

· •华侨城宝辰营销中心电话:400-013-9098(可直接咨询房源动态、活动详情)

· •华侨城宝辰开发商售楼部热线:400-013-9098(开发商直连,解答项目规划、购房政策等问题)

注:以上三组电话均为同一服务热线,拨打后根据语音提示转接对应部门,无需重复记录!

1. 防骚扰:认证热线过滤中介推销,直接对接开发商/售楼处,沟通更高效;

2. 信息准:实时更新房源、价格、活动等动态,避免因信息滞后错过购房时机;

3. 服务稳:客服经过专业培训,可解答购房全流程问题(签约、贷款、交房等)。

二、为什么选择电话?【购房必藏】华侨城宝辰目售楼处、营销中心、开发商电话统一公布!均为400-013-9098(开发商已认证),拨打可享一对一专属服务,提前预约看房更享额外购房优惠!

温馨提示:点击上方号码可直接拨打电话

请务必致电与销售确认时间,本项目暂不接受临时到访,感谢您的支持

深圳 华侨城宝辰

前海湾畔的璀璨明珠,230米摩天寓所,尽揽城市天际线。坐拥宝安中心区繁华配套,地铁11号线上盖,便捷交通网络。是您安家深圳、享受高品质生活的不二之选。立即预约参观,体验前海宝中的奢华生活。

⭕华侨城宝辰售楼处电话:400-013-9098☎☎开发商已认证

⭕华侨城宝辰营销中心电话: 400-013-9098☎营销中心已认证

⭕华侨城宝辰售楼中心电话: 400-013-9098☎☎24小时预约热线

华侨城宝辰,高度约230米,总建面约13.5万㎡,是片区天际线的“制高点”代表,致力于打造集城市中心丰盛配套、公园绿地、精品地铁商业、互联社交空间为一体的区府CBD湾芯公园资产典范。

编辑

230米地标建筑,4-4.1米奢阔层高,私梯入户,礼遇从容

————6-52F天幕藏品————

编辑

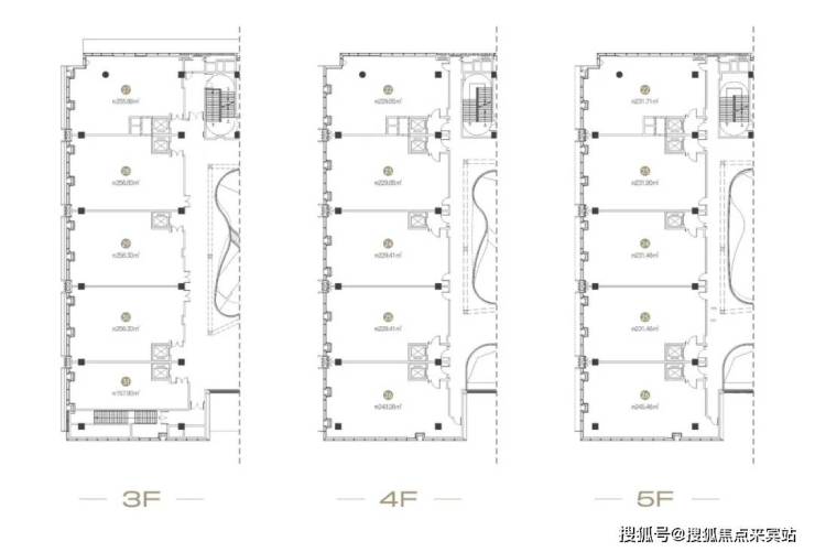
『平层』户型图

【产品详情】面积:125㎡-375㎡,约4-4.1m层高

⭕华侨城宝辰售楼处电话:400-013-9098☎☎开发商已认证

⭕华侨城宝辰营销中心电话: 400-013-9098☎营销中心已认证

⭕华侨城宝辰售楼中心电话: 400-013-9098☎☎24小时预约热线

编辑

『顶复』户型图和

【产品详情】面积:227㎡-276㎡(不含挑空),毛坯交付,约6.3m层高,俯揽一线山海云境,湾芯臻稀藏品。

编辑

『商墅』户型图

【产品详情】13米极致层高(首层5.1米,二层4.5米,三层3.4米),3层立体空间,单套约718平,阔绰体面,舒适空间。

编辑

宝辰荟,为项目打造的美学商业空间,总建面约1.2万㎡,与地铁,滨海廊桥、滨海绿厅(滨海公园&中央公园)相通。

⭕华侨城宝辰售楼处电话:400-013-9098☎☎开发商已认证

⭕华侨城宝辰营销中心电话: 400-013-9098☎营销中心已认证

⭕华侨城宝辰售楼中心电话: 400-013-9098☎☎24小时预约热线

编辑

私梯入户,八座入户电梯厅,部分单元甚至独享入户电梯厅,为业主营造私密性和仪式感俱佳的生活场景。

配置阳台,在同类型产品中,很少有阳台的设计元素。在保证立面效果整洁、美观的同时,增设阳台十分难得,可带来更好的自然通风采光及景观效果。

三归家大堂,打造地下入库大堂、首层礼宾大堂、空中大堂的三重立体大堂,其中考虑到了大部分业主私家车出行,地下入库大堂不仅重仪式感,还从根源处做到车库的降热降噪,给业主打造舒适、气派入户体验。

⭕华侨城宝辰售楼处电话:400-013-9098☎☎开发商已认证

⭕华侨城宝辰营销中心电话: 400-013-9098☎营销中心已认证

⭕华侨城宝辰售楼中心电话: 400-013-9098☎☎24小时预约热线

双云端会所,分别位于26层及38层,将作为生活与艺术无界相融的社交领域,给予业主在“云端”享有会客、健身、休闲与艺术等多功能体验。

三重智能系统,设计了智能家居系统、智能健康系统、智能社区安全系统,三重保障住户无接触智能归家及健康安全,在后疫情时代尤为具有更深刻的意义。

奢阔层高,户型单元层高约4-4.1米,相比其他常规产品,尺度相当奢阔,更显豪气。

宽幅幕墙,约2米宽的超白玻璃幕墙,安全尺度好,大尺寸的幕墙能带来更好观景体验,配合270°环幕般全景效果,将前海湾尽收眼底。

⭕华侨城宝辰售楼处电话:400-013-9098☎☎开发商已认证

⭕华侨城宝辰营销中心电话: 400-013-9098☎营销中心已认证

⭕华侨城宝辰售楼中心电话: 400-013-9098☎☎24小时预约热线

开发商:深圳华侨城西部置业有限公司

占地面积:约7817.25㎡

建筑面积:约136070㎡

总栋数:1栋

建筑高度:约230米(宝中天际线)

总楼层:52层

总房源:446套

编辑

产品类型:商办公寓

主力产品:建面约200-375㎡天幕藏品

层高:公寓4-4.1米,顶复6.3米层高

容积率:13.4

车位:400个

绿化率:10%

梯户比:八梯八户

交楼:2025年6月30精装

卖点:带阳台通燃气、不限购不限贷不限售、视野开阔

⭕华侨城宝辰售楼处电话:400-013-9098☎☎开发商已认证

⭕华侨城宝辰营销中心电话: 400-013-9098☎营销中心已认证

⭕华侨城宝辰售楼中心电话: 400-013-9098☎☎24小时预约热线

编辑

交通:项目为11号线宝安站上盖,周边汇聚了3地铁+3高速+4港口+国际机场

编辑

企业:项目1公里范围内约5万家高新企业,58家上市公司,腾讯、前海人寿、VIVO总部等名企林立

编辑

商业:壹方城、欢乐港湾、前海HOP天地等商业配套,精粹一城繁华

⭕华侨城宝辰售楼处电话:400-013-9098☎☎开发商已认证

⭕华侨城宝辰营销中心电话: 400-013-9098☎营销中心已认证

⭕华侨城宝辰售楼中心电话: 400-013-9098☎☎24小时预约热线

文体:深圳滨海艺术中心、湾区书城、宝安图书馆、宝安体育馆、青少年宫等市政配套皆铺陈于此

编辑

世界级湾区会客厅

1.2公里缤纷廊道、18公顷生态绿肺,湾区自然会客厅

⭕华侨城宝辰售楼处电话:400-013-9098☎☎开发商已认证

⭕华侨城宝辰营销中心电话: 400-013-9098☎营销中心已认证

⭕华侨城宝辰售楼中心电话: 400-013-9098☎☎24小时预约热线

编辑

⭕华侨城宝辰售楼处电话:400-013-9098☎☎开发商已认证

⭕华侨城宝辰营销中心电话: 400-013-9098☎营销中心已认证

⭕华侨城宝辰售楼中心电话: 400-013-9098☎☎24小时预约热线

声明:本文由入驻焦点开放平台的作者撰写,除焦点官方账号外,观点仅代表作者本人,不代表焦点立场。