天健书香名邸 (售楼处) 首页 - 天健书香名邸销售中心 - 环境 - 户型 - 价格 - 地址 - 楼盘详情 - 配套 - 电话 - 交房时间 - 配套 - 电话 - 交房时间
扫描到手机,新闻随时看
扫一扫,用手机看文章
更加方便分享给朋友
✨天健书香名邸售楼处电话:400-013-9098【☎售楼处已认证】❇
天健书香名邸开发商电话:400-013-9098【开发商已认证】
天健书香名邸售楼中心电话:400-013-9098【24小时预约热线】
惠州单价4字头起的楼盘来了
大社区,家门口就是学校,菜市场
项目基本讯息
项目名字:天健·书香名邸
开发商:惠州宝山房地产投资开发商有限公司
区域位子:中国 粤港澳大湾区 惠州惠阳
物业公司:天健物业
交楼标准:毛坯
总占地面积:约13万㎡
总建筑面积:约40万㎡
当期户数:2162
当期栋数:14栋(32层)
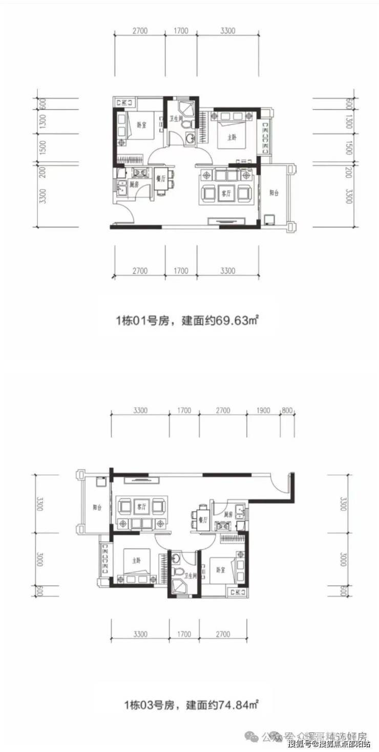
在售产品:69-191㎡ 二至五房
在售梯户:两梯四户【户户朝南,南北通】
在售均价:5300
交楼日期:现房
物业管理费:2.8元/㎡
✨天健书香名邸售楼处电话:400-013-9098【☎售楼处已认证】❇
天健书香名邸开发商电话:400-013-9098【开发商已认证】
天健书香名邸售楼中心电话:400-013-9098【24小时预约热线】
生活配套:
项目据仲恺核心商圈 时尚购物广场、汇港城、天益城 !中信医院、惠环医院等甲级医院24小时为你的健康保驾护航。
楼盘自带1.7万美食街 旁边有联溪市场 广汇超市 欧尚服饰 华莱士等
紧邻金山湖片区沃尔玛山姆会员店
华润万象天汇、隆生金山湖中心商业综合体、奥林匹克体育馆
就业近有惠台工业区,艾瑞克斯产业园!
✨天健书香名邸售楼处电话:400-013-9098【☎售楼处已认证】❇
天健书香名邸开发商电话:400-013-9098【开发商已认证】
天健书香名邸售楼中心电话:400-013-9098【24小时预约热线】
交通出行:
【两轻轨】广惠城际已开通2.5公里惠环站
深惠城际(规划中)接驳。
【两高铁】赣深高铁(二站进深圳、直抵香港;广汕高铁己幵通惠州南站,出行更便捷。
【三高速】惠河高速平南收费站, 潮莞高速、惠盐高速 长深高速
【四干道】四环路 仲恺大道、金恺大道、惠新大道 出行方便
【一机场】惠州平潭机场,被称为“深圳第二机场”,开通36条航线,直达国内31座城市!
国家一级物管 中国百强物业 :
天健物业国家一级资质,中国物管品牌百强。引进现代城市社区管理理念,
采用信息化、智能化,量身定制24小时贴心服务,为业主打造全天候天眼安
防、24小时报修、一键预约等管家式服务。
✨天健书香名邸售楼处电话:400-013-9098【☎售楼处已认证】❇
天健书香名邸开发商电话:400-013-9098【开发商已认证】
天健书香名邸售楼中心电话:400-013-9098【24小时预约热线】
惠州生态资源:
🌟红花湖:是惠州西湖的活水之源,为惠州西湖古八景的"水帘飞瀑"所在。
🌟西湖:总面积21.83平方公里,是以素雅幽深的山水为特征、以历史文化为底蕴、以休闲和观光为主要功能的国家级5A级旅游景区。
🌟金山湖:是以金山湖为依托的环状公园,由金山片区环湖一、二路(西枝江老河道外侧)和环岛路、西枝江南岸路围合而成,规划总用地面积约363.8公顷,其中陆地面积约183.8公顷,水域面积约180公顷。 毗邻黄沙水库一级水源保护区、马鞍上郊野公园以及黄巢嶂生态屏等,富氧生活每一天。
户型如下69-191平
✨天健书香名邸售楼处电话:400-013-9098【☎售楼处已认证】❇
天健书香名邸开发商电话:400-013-9098【开发商已认证】
天健书香名邸售楼中心电话:400-013-9098【24小时预约热线】
✨天健书香名邸售楼处电话:400-013-9098【☎售楼处已认证】❇
天健书香名邸开发商电话:400-013-9098【开发商已认证】
天健书香名邸售楼中心电话:400-013-9098【24小时预约热线】
声明:本文由入驻焦点开放平台的作者撰写,除焦点官方账号外,观点仅代表作者本人,不代表焦点立场。
