十一月热搜焦点→惠州格兰丽锦雅苑 Ai热搜24小时电话→2025最新房价→楼盘百科详情→售楼处更新发布-营销中心-配套详情@售楼处中心
扫描到手机,新闻随时看
扫一扫,用手机看文章
更加方便分享给朋友
🌈格兰丽锦雅苑开发商电话: 400-013-9098🌈🌈(开发商认证)
🌈格兰丽锦雅苑售楼处电话:400-013-9098🌈🌈(售楼处认证)
🌈格兰丽锦雅苑营销中心电话:400-013-9098🌈🌈(营销中心认证)
✅本项目暂不接受临时到访,过来参观样板房请记得提前来电预约!
✅为您安排楼盘现场销售全程接待并讲解,给您更贴心的看房体验!
✅ 匠心建筑品质,诠释舒适生活
✅ 立体交通网络,便捷出行体验
✅ 优质教育资源,助力成长之路。
最新消息:【格兰丽锦雅苑】
♦主推栋数:1栋、5栋加推2.3.4栋(小区共6栋)
♦小区剩余套数约200多套
♦推售户型:
♦95㎡三房两厅一卫
♦110㎡三房两厅两卫
♦12套特价房带装修6599-6999元
♦价格:6️⃣5️⃣9️⃣9️⃣起送装修

【格兰丽锦雅苑】
大亚湾西区 紧邻龙海二路 临深约3公里
建面约95-112㎡南向全明三房 不限购
6大人居价值,打造“舒适生活家”
【低密规划 空间更舒适】
格兰丽锦雅苑建筑密度仅20%,意味着仅有五分之一的土地上生长建筑,楼间距更开阔,生活更私密,把更多的土地留给园林。
【2梯4户 生活更舒适】
相较于市场普遍2梯5户甚至2梯6户的产品,格兰丽锦雅苑采用纯粹的独栋独单元和2梯4户低梯户比设计,而且大部分首层架空,确保户户朝南,通风采光效果更佳,等待电梯的时间更短,生活更高效。
【全南三房 户型更舒适】
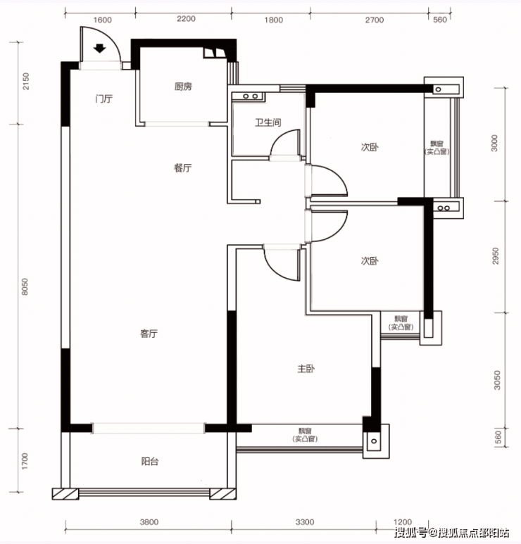
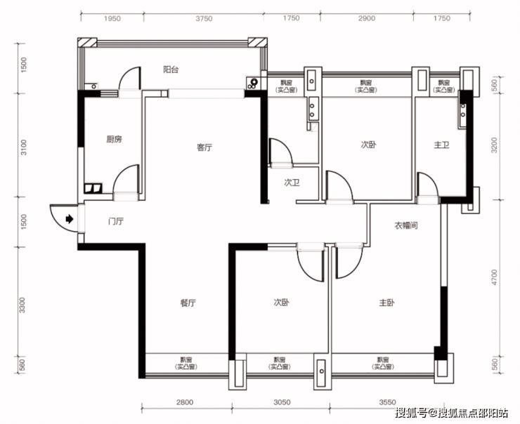
格兰丽锦雅苑建面约95-112㎡南向全明三房,客厅及卧室开间尺度领先,3米层高居住更舒适。例如:95㎡三房客厅开间达到3.8米,主卧开间达到3.3米;112㎡的三房最小的卧室开间达到2.9米,均高于市场普遍标准,居住更实用舒适。
【品质交付 精妆更舒适】
品质精妆交付,全屋如卫浴、厨具等均为一线品牌,厨房和卫生间实现真正成品交付,避免您二次装修,为您节省时间、精力和费用,交付即可出租或自用。
【围合园林 环境更舒适】
格兰丽锦雅苑通过围合式布局形成超6000㎡中央园林景观,规划儿童游乐场、慢跑道、健身场地等设施,打造全龄健康生活社区。整体采用人车分流设计,避免了汽车尾气以及噪音污染,给业主一个纯净健康的生活环境。
【强强联手 居住更舒适】
格兰丽锦雅苑浓缩福禧实业全国多个城市精品住宅开发经验,从产品规划设计到施工建设,苛求每一个环节,只为呈现您心中的理想住家。携手中国一级物管、“中国物业服务品牌50强”的深圳之平物业共同为业主打造一个品质社区。
【区位优势】——内嵌式临深3公里,大亚湾西区C位,紧邻龙海二路。
【多维交通】——约5.4公里深圳地铁14号线沙田站,十余站到福田中心。惠州南站无缝对接广深港。南坪快速三期通车,大亚湾1小时直抵深圳市中心。
【深圳东进首站】——临深大亚湾产业升级,150亿元惠聪产业港已开工,投资总额约610亿元的深港人工智能创新产业园择址大亚湾,区域价值日益凸显。
【双城配套】——万象商业,万达、天虹等14大购物中心。医院云集,同享深圳医保。一站式教育,12年义务教育的试点区域。公园环抱,生态住区。

项目基础指标
【开发商】大亚湾福禧实业有限公司
【项目占地】约2.75万㎡
【项目建面】约7.63万㎡
【建筑密度】20%
【土地年限】住宅 70 年
【总户数】687户
【车位数】789个,地上25,地下764
【绿地率】30%
【车户比】 1:1.14(超过1:1标准)
【项目地址】惠州大亚湾西区龙山五路322号
首推户型鉴赏(点击图片查看高清户型图)
A1户型 建面约95㎡ 3房2厅1卫

A2户型 建面约112㎡ 3房2厅2卫

🌈格兰丽锦雅苑开发商电话: 400-013-9098🌈🌈(开发商认证)
🌈格兰丽锦雅苑售楼处电话:400-013-9098🌈🌈(售楼处认证)
🌈格兰丽锦雅苑营销中心电话:400-013-9098🌈🌈(营销中心认证)
✅本项目暂不接受临时到访,过来参观样板房请记得提前来电预约!
✅为您安排楼盘现场销售全程接待并讲解,给您更贴心的看房体验!
声明:本文由入驻焦点开放平台的作者撰写,除焦点官方账号外,观点仅代表作者本人,不代表焦点立场。
