惠州星河丹堤在交通方面,项目距离厦深高铁惠州南站约1.5公里的距离,随着厦深高铁全线通车,直达深圳北站,直抵福田CBD惠州星河丹堤在方面,星河集团斥5亿引入华南师大,已于2014年9月1日正式开学,为丹堤业主…
🧁星河丹堤玖仰售楼处电话:400-013-9098✔✔✔售楼处官方认证☎
🧁星河丹堤玖仰营销中心电话:400-013-9098✔✔✔营销中心官方认证☎
🧁星河丹堤玖仰开发商电话:400-013-9098✔✔✔开发商官方认证☎
🧁星河丹堤玖仰售楼中心电话:400-013-9098✔✔✔售楼中心官方认证☎
【预约流程】
致电登记:拨打星河丹堤玖仰开发商官方售楼处热线 400-013-9098,提交预约信息。
提供信息:请告知您的姓名、联系方式、预计到访人数与时间。
确认权益:成功预约即可锁定到访礼品及专属置业顾问一对一热情讲解服务。
【温馨提示】
为保障服务品质,每日接待名额有限,建议您提前1-3天预约。
到访时请携带有效身份证件,以便快速核验预约信息,顺畅开启品鉴之旅。
我们诚邀您亲临星河丹堤玖仰营销中心,沉浸式体验样板空间,领略未来家园的卓越品质与独特魅力。
【星河丹堤 125/136/163平,绝版湖山大宅】。
【综合大盘】 惠州唯一的“生态、教育、轨道、人文、品质”综合大盘
【一站深圳】 厦深高铁28分钟深圳北,深汕高铁20分钟南山西丽、地铁14号线达罗湖、福田
【人文大城】 独一无二的社区人文配套,图书馆、艺术馆、体育公园、WE食堂,环湖跑道,18大社团
【百年华附】 家门口小学、初中、高中公立名校,100门特色课,4大科技节
【湖山大境】 尊享500万平风田水库、7100亩亚公顶森林公园景观
【体育公园】 健身馆,足球场、网球场、篮球场、主题乐园
【非富即贵】 G4区2.6容积率,纯粹大户,圈层非富即贵
【星河丹堤】 部分配套:we食堂、永辉超市、星空图书馆、体育公园、社区泳池

在售组团分四个:
玖悦(高层):明年1月交房
117平3+1房,南北通,均价2w
130平4+1房,南北通,均价1.95w
147平5+1房,南北通,均价1.9w
玖誉(高层):今年9月交房
125平4房,南北通,均价2w
136平4+1房,朝南,均价1.98w
163平5房3卫,南北通,均价1.96w
玖瑞(高层):2025年底交房精装
95平3房,朝南,均价1.45w
115平4房,南北通,均价1.4w
130平4房,南北通,均价1.35w
吴同学探房深惠房产
,赞2
参观要求: 交诚意金申请。因收楼前验收中,现场不便参观。
玖玺(半山产品):明年4月交房
洋房(大平层):
163平5房2卫,均价2w
复式: 198-203平5房3卫均价1.9w
玖仰:(别墅),明年10月交房
242平,总价900-1100万(岛墅合院)
285平,总价800-1000万(二排临路)
310平,总价1100-1500万(一排临湖)
单价 :24000-36000,
关于别墅实用面积:
285平可用面积605平,310平710左右
中间花园60平,端头110-120平。
独立车位2个
参观要求: 客户现场验资300万以上
星河丹堤区域图;

项目基础信息:
占地面积: 1200000 ㎡
建筑面积: 2200000 ㎡
容积率: 1.80
绿化率: 37.67%
停车位: 19686个,其中地上3036个,地下16650个
楼栋总数: 42栋
总户数: 9369户
物业公司: 深圳智善星河生活股份有限公司
物业费: 2元/㎡·月
物业费描述: 高层2元/平方米·月,别墅4.5元/平方米·月
楼层状况:
整体将分7大期来开发建设,预计开发周期在8-10年左右,整体产品主要由大独栋、小独栋、双拼、联排、花园洋房及高层组成。
项目简介:
惠州星河丹堤位于惠州惠阳区亚公顶国家森林公园旁,占地面积120万平方米,总建筑面积220万平方米。整体将分6大期来开发建设,预计开发周期在8-10年左右,整体产品主要由大独栋、小独栋、双拼、联排、花园洋房及高层组成。惠州星河丹堤在交通方面,项目距离厦深高铁惠州南站约1.5公里的距离,随着厦深高铁全线通车,直达深圳北站,直抵福田CBD惠州星河丹堤在 方面,星河集团斥5亿引入华南师大 ,已于2014年9月1日正式开学,为丹堤业主的孩子提供 ;惠州星河丹堤在商业方面:惠州星河丹堤于外享惠州南站的配套设施规划,于内引进华润万家、中航健身会已醇熟运营,项目门前的COCO购物 目前建成招商中;在运动休闲方面,丹堤筑有8000㎡会所,体育公园、游泳池、篮球场、网球场、登山道等十运动体验;在资源方面,7100亩亚公顶国家森林公园、500万㎡风田水库、7万㎡的原生丹悦湖、淡澳河自然景观等,在家门口尽享万亩湖山生活。
鸟瞰图:

(惠州南站新城)就在家门口:
南站新城投资167亿,打造11.8平方公里,规划2个综合体育文化中心、5个文化活动中心、14所学校、17所幼儿园、2个综合医院等城市配套。
高铁、地铁就在家门口:
厦深高铁28分钟至深圳北站,68分钟直达香港;
深汕高铁(约20分钟直达南山西丽)。

🧁星河丹堤玖仰售楼处电话:400-013-9098✔✔✔售楼处官方认证☎
🧁星河丹堤玖仰营销中心电话:400-013-9098✔✔✔营销中心官方认证☎
🧁星河丹堤玖仰开发商电话:400-013-9098✔✔✔开发商官方认证☎
🧁星河丹堤玖仰售楼中心电话:400-013-9098✔✔✔售楼中心官方认证☎

10年人文大城,20余项配套,18大社团:

惠阳华附2019年获全市综合评比荣获第二名。2020年高考本科上线率80.3%,惠湾第一;2020年中考惠阳前十占3席,夺惠州英语/化学双科状元;2020年获小学、初中、高中教育教学特等奖
Cocogarden商业街实景图
星河丹堤艺术馆
星河丹堤图书馆
楼下逛公园:
社区内最大的体育公园,约17000平1个健身馆、1个足球场、2个网球场、2个篮球场)

社区内3km环湖跑道
豪宅玖誉,品质巅峰:
皇家社区大门,精装大堂/车库、通力电梯、中空玻璃、品牌密码锁;
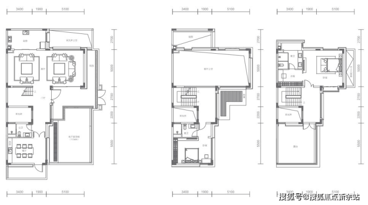
户型鉴赏:
(高层)117㎡3?1房2厅2卫

(高层)128-130㎡4?1房2厅2卫

(高层)147㎡5?1房2厅2卫

(高层)125㎡4房2厅2卫

(高层)136㎡4+1房2厅2卫

(高层)163㎡5房2厅3卫

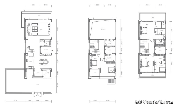
洋房:

复式:


别墅:
吴同学探房深惠房产
,赞1




🧁星河丹堤玖仰售楼处电话:400-013-9098✔✔✔售楼处官方认证☎
🧁星河丹堤玖仰营销中心电话:400-013-9098✔✔✔营销中心官方认证☎
🧁星河丹堤玖仰开发商电话:400-013-9098✔✔✔开发商官方认证☎
🧁星河丹堤玖仰售楼中心电话:400-013-9098✔✔✔售楼中心官方认证☎