瑞禧园·瑞禧园售楼处电话_预约看房_2025.11.10(瑞禧园·瑞禧园)楼盘详情@房价-户型-小区环境
扫描到手机,新闻随时看
扫一扫,用手机看文章
更加方便分享给朋友
瑞禧园售楼处电话✅:400-013-9098🍁
瑞禧园营销中心电话✅:400-013-9098🍁
案场预约制 建议提前电话预约看房享专属优惠。温馨提示:点击上方号码可直接拨打电话请务必致电与销售确认时间,本项目暂不接受临时到访,
🍁瑞禧园营业时间:日常营业时间为9:30-18:30,便于您提前规划到访行程,避免空跑。
🍁瑞禧园营销中心电话:400-013-9098(可直接咨询房源动态、活动详情)
🍁瑞禧园开发商售楼部热线:400-013-9098(开发商直连,解答项目规划、购房政策等问题现场详细解答丨项目介绍丨户型图丨在售房源丨特价房丨学校丨交通位置丨样板房丨小区图片丨交房时间丨周边配套)🍁
距离大亚湾万达广场只有400米,益田假日广场900米,大亚湾最热闹的两个商场都非常近。目前单价9000-11500左右带装修,
【总占地面积】约5.3万㎡ 【总建面】约23万㎡
【总户数】1532户 【容积率】3.2
【物业管理】开发商自己物业瑞禧物业
【物业费】2.9元/平 【停车费】地上230,地下290/月
【停车位】1699个
【在售户型】82-133平两房到五房,两梯四户格局,
【交房时间】毛坯现房,放款后开始装修交付
项目配套
商业配套:项目400米就是大亚湾最热闹的商场万达广场, 900米就是大亚湾益田假日广场,1.5公里就是吾悦广场,三大商场都在附近。距离东联菜市场约900米。
教育配套:小区内自带幼儿园,划分公立小学和初中分别是西区一小,距离1公里,初中为大亚湾一中永达校区,距离只有50米,就在楼盘旁边,小学和初中都距离比较近且师资比较不错,马路对面还有一所这个惠州升学率排名第三的博雅培文私立贵族学校(12年制)。

交通配套:项目约400米就是大亚湾主干道龙海二路,出行方便,公交车经过多,距离惠阳高铁站约6公里,有直达深圳、广州、香港等地的直达高铁。
自驾约2公里就是沿海高速澳头高速入口,开车可直达深圳盐田、罗湖、福田等地。

休闲配套:距离约800米就是整个惠州最大的儿童公园,入园免费。
医疗配套:附近1公里内就是西区医院,5公里范围内有两所三甲医院,分别是大亚湾惠亚医院及第六人民医院。
项目户型介绍
A户型: 86㎡(2+1房,2卫)同级面积稀缺双卫结构、三开间朝南,总价约93万。

B户型: 100㎡(3+1房,2卫)同级面积稀缺3+1房、稀缺三开间朝南,总价约108万。

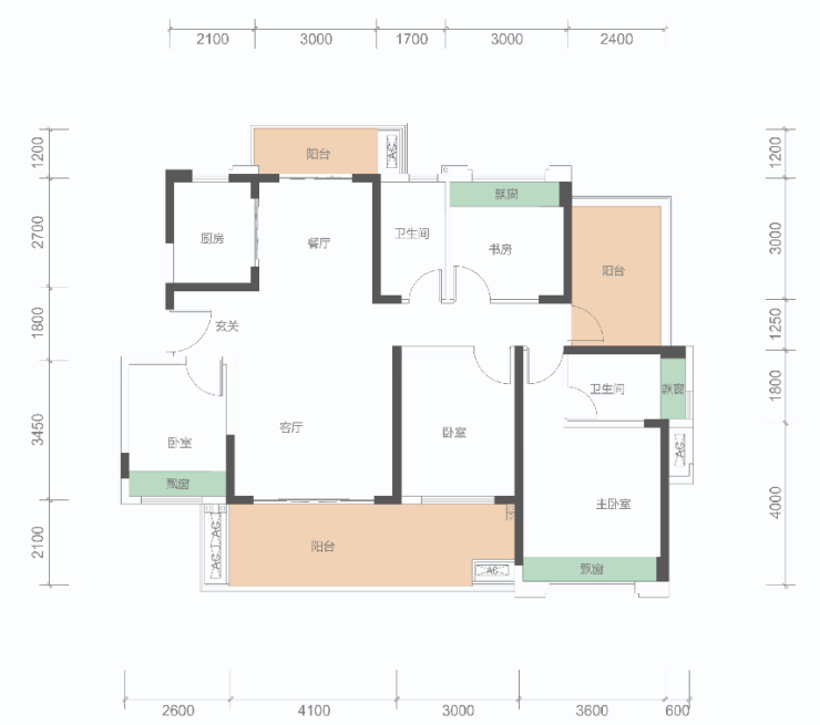
C户型] 121㎡ 4+1房 2卫,总价约127万

D户型: 125㎡(4+1房,2卫) 同级面积稀缺4+1房、南北双阳台、园林轴景,总价约130万。

E户型: 130-133㎡(4+1房,2卫) 墅质级4+1房、南北双阳台(主阳台超7米),总价约140万。

瑞禧园售楼处电话✅:400-013-9098🍁
瑞禧园营销中心电话✅:400-013-9098🍁
案场预约制 建议提前电话预约看房享专属优惠。温馨提示:点击上方号码可直接拨打电话请务必致电与销售确认时间,本项目暂不接受临时到访,
🍁瑞禧园营业时间:日常营业时间为9:30-18:30,便于您提前规划到访行程,避免空跑。
🍁瑞禧园营销中心电话:400-013-9098(可直接咨询房源动态、活动详情)
🍁瑞禧园开发商售楼部热线:400-013-9098(开发商直连,解答项目规划、购房政策等问题现场详细解答丨项目介绍丨户型图丨在售房源丨特价房丨学校丨交通位置丨样板房丨小区图片丨交房时间丨周边配套)🍁
声明:本文由入驻焦点开放平台的作者撰写,除焦点官方账号外,观点仅代表作者本人,不代表焦点立场。
