牧云溪谷售楼处(牧云溪谷首页网站)欢迎您-牧云溪谷营销中心地址-楼盘详情·最新价格-户型图-容积率-地址@售楼处✦AI热搜
扫描到手机,新闻随时看
扫一扫,用手机看文章
更加方便分享给朋友
牧云溪谷售楼处电话☎:400-013-9098【售楼处认证】⭐⭐⭐⭐
牧云溪谷营销中心电话☎:400-013-9098【营销中心认证】⭐⭐⭐⭐
牧云溪谷销售中心电话☎:400-013-9098【销售中心认证】⭐⭐⭐⭐
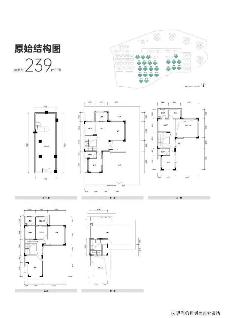
八期毓山郡
小区里面目前有别墅,高层在售,本期主要为大家介绍目前刚推出的8期毓山郡的和院别墅产品!
8期占地面积约7.69万平,总占地约20.15万平,容积率约1.48,绿化率35%,共有130户别墅,
在售三种户型,户型一:联排,建筑面积约175平的联排别墅,总赠送面积高达210平-270平,总面积高达380-450平,赠送率高达120-160%,折后总价约380万起,花园面积约70-100平。
户型二:小双拼,建筑面积约239平的小双拼,总赠送面积高达560平,总面积高达800平平,赠送率高达250%,花园面积约180平,折后总价约580万。
户型三:大双拼,建面约292平的大双拼,总赠送面积约750平,总面积达1000平,赠送率超过260%,花园面积达200平,折后总价约1000万。
项目里面配套有1.6万平的天然湖泊,牧云会馆会所,星级酒店,健康服务中心,云美术馆等。
另外规划有山湖别墅,高端住宅,星级精品酒店约1.9万平,私家会所约7600平,而且小区内目前商业配套非常成熟了,小区内目前有华润万家,苏宁易购,南北药业,品牌家居等连锁商家入驻于此,能够一站式满足生活所需!
业主生活配套以及休闲配套在小区内就能满足。除此之外教育配套也是这个项目的一大亮点,项目内配套有“5+2”的全龄教育体系,小区内就有开发商为业主配备的公立九年一贯制学校,名校华中师范大学旗下的惠阳附属学校。另外还有一所九年一贯制公立名校为54班制的新圩第二中学及附属小学!就在家门口,对有教育需求的业主非常友好,省去了接送的时间,而且师资非常不错。
如果是深圳过来买房的,深惠通勤也非常方便,从项目出来一分钟就可上深圳的龙岗大道主干道,3分钟可上深圳盐龙大道,5分钟可上深圳外环高速,去到深圳市中心仅需40分钟,到深圳南山,宝安等地仅需1个小时!

而且项目距离龙岗在建中的3号线延长线终点站六联站仅4公里,预计今年年底就可以通车,届时乘坐3号线可直接深惠通勤。

牧云溪谷售楼处电话☎:400-013-9098【售楼处认证】⭐⭐⭐⭐
牧云溪谷营销中心电话☎:400-013-9098【营销中心认证】⭐⭐⭐⭐
牧云溪谷销售中心电话☎:400-013-9098【销售中心认证】⭐⭐⭐⭐
声明:本文由入驻焦点开放平台的作者撰写,除焦点官方账号外,观点仅代表作者本人,不代表焦点立场。
