南山1978-深圳南山1978楼盘详情(2025房价+户型图)南山1978
扫描到手机,新闻随时看
扫一扫,用手机看文章
更加方便分享给朋友
⭕南山1978·半岛擎峯售楼处电话:400-013-9098☎☎开发商已认证🌶️🌶️
⭕南山1978·半岛擎峯营销中心电话:400-013-9098☎☎营销中心已认证🌶️🌶️
⭕南山1978·半岛擎峯售楼中心电话:400-013-9098☎☎24小时预约热线🌶️🌶️
➢ ➢本项目采用预约制,过来营销中心参观样板间请记得提前拨打开发商楼盘售楼处400热线电话:在线预约,感谢您的配合!
【项目基本信息】
🔸 占地面积:约3.4万㎡
🔸 建筑面积:约32万㎡
🔸 绿化率:30%
🔸 业态:住宅、商业、写字楼、国际五星级酒店
🔸 可售住宅:418户
🔸 物业费:6.79元/㎡/月
🔸 车位数:1346(专享地上车位:460个,综合地下车位:886个 )
🔸 车位比:约1:1.1
🔸 梯户比:T1栋4梯6户,T2栋4梯4户
🔸 交房时间:2025年6月精装交付
🔸 片区运营开发商:中国南山开发(集团)股份有限公司
🔹 项目地址:南山区赤湾六路东北侧(地铁2/5号线赤湾站E口地铁上盖)
区域价值
【双湾核心C位 世界海洋科技集群】赤湾西联前海、东接蛇口,占据深圳双湾C位。以世界海洋科技先导的“创新核、枢纽核、文化核”三大定位,与前海、蛇口双千亿规划片区,共同推动深圳迈向国际海洋中心城市。
【约3.2平方公里 世界海洋科技创新先导区】在大的蓝图下,中国南山以同步世界湾区的规划理念,打造“前港-中园-后城”的城市格局。并依托3山1海的资源禀赋优势,以“两环、三心、三轴、六大街区组团”的蓝图规划,打造屹立深圳湾区的世界半岛生活。
项目周边配套
1. 交通:5地铁+海陆空全维覆盖
- 地铁:2/5号线赤湾站(E口零距离),1站到太子湾、2站到海上世界,未来24/28号线接入,真正“轨交心脏”。
- 自驾:兴海大道、妈湾跨海隧道(2025年通车)10分钟直达前海,深港西部快轨建成后,45分钟直通香港。
2. 教育:家门口的“国际升学链”
- 公立:连廊直通南二外赤湾学校(九年一贯制),北师大附中高中(在建)、太子湾学校环伺。
- 国际:南山中英文学校(港籍班)、贝赛思、哈罗等顶尖学府簇拥,从幼儿园到高中,一条龙搞定“精英教育”。
3. 商业:下楼就是“顶流商圈”
- 自持4.6万㎡滨海TOD商业(规划引进五星酒店+高端mall),1站到**太子湾K11 ECOAST**(亚洲旗舰)、兰桂坊,2站到海上世界。
- 6公里内万象前海、山姆会员店等10余个大型商超,穿睡衣也能逛遍全球!
129㎡三房二卫A1:
A1有两条腿,分别1-1栋01/02,主朝向是西北向,双龙抱珠格局。
舒适大三房设计主卧都享有270度采光面,整体空间尺度感大且采光面充足,视野非常宽阔。
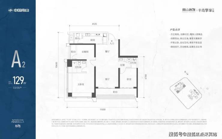
129㎡三房二卫A2:
A2有两条腿,分别1-1栋03/06,主朝向是东南向,双龙抱珠格局。这个户型是超阔大阳台,朝向优于A1,但公卫是个暗卫。
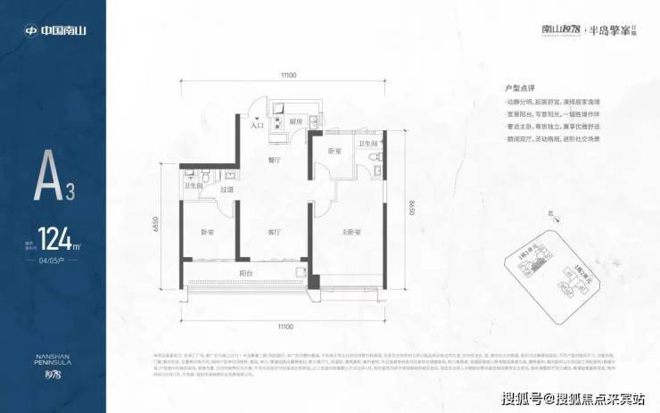
124㎡三房二卫A3:
A3也是两条腿,分别是1-1栋04/05,主朝向是东南向,双龙抱珠格局。客厅拥有超大观景阳台,缺点是公卫是个暗卫,小次卧和主卫也对天井外走廊,采光不足。
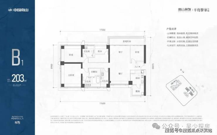
203㎡四房三卫B1:
位于1-2栋两条腿,设有电梯厅入户空间,隐私性拉满,这个空间约有面积6.27㎡,空间也可以很好利用。
整个户型设计是四房三卫南北通透,约有7.4米大阳台。双套房设置且270°景观面,主卧带独立衣帽间和大浴缸。
133㎡三房二卫B2:
B2有两条腿,分别1-2栋03/04,主朝向西南向,竖厅设计。
这个户型的所有卧室空间都比较平均,主卧两面采光,综合来看是个很完整的传统三房户型。
⭕南山1978·半岛擎峯售楼处电话:400-013-9098☎☎开发商已认证🌶️🌶️
⭕南山1978·半岛擎峯营销中心电话:400-013-9098☎☎营销中心已认证🌶️🌶️
⭕南山1978·半岛擎峯售楼中心电话:400-013-9098☎☎24小时预约热线🌶️🌶️
➢ ➢本项目采用预约制,过来营销中心参观样板间请记得提前拨打开发商楼盘售楼处400热线电话:在线预约,感谢您的配合!
声明:本文由入驻焦点开放平台的作者撰写,除焦点官方账号外,观点仅代表作者本人,不代表焦点立场。
