南山华侨城新玺(深圳)华侨城新玺_深圳华侨城新玺欢迎您丨楼盘详情
扫描到手机,新闻随时看
扫一扫,用手机看文章
更加方便分享给朋友
♚华侨城新玺售楼处电话:4000139098售楼中心,仅限服务购房相关咨询及预约
♚深圳【华侨城新玺】售楼处电话:400-013-9098【营销中心】中介勿扰
♚在售户型图丨项目介绍丨最新房源丨周边配套丨详细解答
♚本文内容为广告推广,涉及房价或现有房源可能出现变更,请致电详询并以售楼部为准
♚免责:本文部分内容来自网络,如有侵权,请联系删除
 
 
 
 
华侨城新玺项目基础指标
项目:华侨城.新玺
开发商:华侨城新玺发展有限公司
物业类型:公寓 商办
地址:深圳市南山区湾厦路1号
占地面积:2.5万㎡
建筑面积:28.9万㎡
总户数:210户
栋数:3栋
产权:40年(18-58年)
容积率:7.42
层高:3.6-4米
梯户比:3梯1户,3梯2户
总层:38-57层
户型:232-280㎡3房,320-400㎡4房,468-610㎡5-6房
交楼标准:精装
交楼时间:2023年12月31日
单价:10-18万
均价:13.9万/㎡
总价:3000-6000万
车位:660个
绿化率:30%
物业:华侨城新玺物业
物业费:14.8元/㎡
 
华侨城新玺楼盘详情
【粤港澳之核,大湾区之芯】
蛇口将环抱联动前海、深圳湾,形成三大千亿经济中心叠加发展格局,成为深圳未来30年发展的主要增长极。
【集萃生活理想,领驭万象风华】
海陆空轨交通枢纽,世界版图从容跨越
太子湾邮轮母港 | 深圳湾口岸 | 大南山隧道 | 妈湾跨海隧道 | 微波山隧道 | 望海路 | 深港澳国际机场群 | 地铁2/12号线
 
【景观—三面环海,收放世界想象】
国际湾区唯一三面环海的海幕豪宅,天赋臻稀,独具匠心的建筑排布与户型设计,最大程度上保留了270°的海景视野。
 
【品质—镶嵌在海中的豪宅,湾区仅此一处】
①世界大师与传奇建筑的对话
邀请世界顶级设计团队,德国gmp建筑设计、英国MSP景观、法国RFR幕墙等世界大师,汇聚成至诚用心的高品质综合体。
②灵动立面,地标级滨海综合体
 
立面熠熠生辉,点亮一湾璀璨,项目最高建筑约249米,筑就片区新地标。
【奢享配套——私密半岛,环海花园】
①首层城市花园,无缝连接15公里滨海长廊
②自带约2.5万㎡峡谷中庭式商业,滨海购物新体验
③高端私密会所、深圳首个悬空无边际海景泳池
 
 
 
【产品—深圳湾罕有海幕纯大户】
①稀缺纯板楼设计,户户朝南,户户赏海。双面采光,南向均为永久无遮挡海景,东西端户更享受三面采光与270°环幕海景
②3.6米奢阔层高,约220-630㎡纯大户,预留燃气条件,带阳台
③内部空间灵动百变
 
 
 
 
【户型鉴赏】
T1A栋B/C:约230-238㎡ 3房2厅3卫
 
B/C户型对称,楼栋中间位置,3房设计,类似恒二的庭室布局。遗憾的是暗卫多,中间位置决定了户型开间的有限,美好的海景面肯定要留给睡房。长约5m左右的阳台略短,2.1m的宽度很多公寓达不到,实地看房体验还是很舒适的。
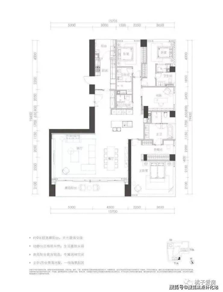
T1A栋A/D:约346/353㎡ 4房2厅4卫
 
 
两个户型分别在东西端头位置,三套间+书房,格局相同,面积略有差异,D户型书房更大点。
约9m长的一线海景大阳台,一望无际的海景可以铺满视野。270°采光,270°景色环绕,L型全景落地窗大主卧,绝对的奢享。整体上西端头景观面要好些,西面靠内湾视野更开阔,东面则是住宅区。
T1A栋E:约475㎡ 5房3厅5卫+工人房
 
整个项目的楼王单位,只存在于高区33-38楼,极为稀缺。户型格局相当于T1A栋A户型的加强版,楼层更高,尺度更大,功能性更全面;增加了保姆间、起居室等空间,近80㎡的至尊主卧配备独立书房,收藏级产品。
T1A栋F:约259㎡ 3房2厅3卫
 
T1A栋F户型格局感觉是T1A栋D户型的削弱版,尺度更小,东西向面宽缩短,减少了一个房间。相同的景观面,但该户型楼层更高。不足之处在于,“中央公卫”设计很突兀,狭长的过道有点浪费面积。
T1B栋B/C:约221-227㎡ 3房2厅3卫
 
T1B栋B/C与T1A栋B/C格局相同,只是面积上略有差异。位置不如T1A栋,但是也能看不错的海景。个人认为C户型位置要优于B户型,因为南面海景和北面湾景视角都要大一点。
T1B栋A/D:约280㎡ 3房2厅4卫
 
 
T1B栋D与T1A栋F户型格局相似,但是终于把“中央公卫”去掉了,换成吧台,明显协调了许多。东端头无遮挡,270°景观,适合看日出。
A户型与D对称,位于东端头位,但是T2栋和T1A栋会对270°的景观的完整性有影响。
T1B栋E:约409㎡ 4房2厅5卫+工人房
 
409平的超级平层,四套间设计,动静分区,井然有序。西端头公共空间“L”形超大面宽非常气派;卧室都在东侧,远离T2办公楼,有私密起居室,宁静怡然。仅存在T1B栋33-38层,数量稀缺。
T1B栋F:约404㎡ 4房2厅5卫+工人房
 
户型四套间设计,配备工人房,主佣分区,竖厅布局,约12m双厅进深,空间利用率很高。
♚华侨城新玺售楼处电话:4000139098售楼中心,仅限服务购房相关咨询及预约
♚深圳【华侨城新玺】售楼处电话:400-013-9098【营销中心】中介勿扰
♚在售户型图丨项目介绍丨最新房源丨周边配套丨详细解答
♚本文内容为广告推广,涉及房价或现有房源可能出现变更,请致电详询并以售楼部为准
♚免责:本文部分内容来自网络,如有侵权,请联系删除
声明:本文由入驻焦点开放平台的作者撰写,除焦点官方账号外,观点仅代表作者本人,不代表焦点立场。
 
 
 