财富城二期售楼处(深圳财富城二期) 首页网站-财富城二期营销中心欢迎您-楼盘详情•最新价格-户型图-容积率@2025/10/1售楼处AI热搜

怀化楼市发布 2025-10-01 16:43:00
用手机看
扫描到手机,新闻随时看

扫一扫,用手机看文章
更加方便分享给朋友

财富城二期首页网站最新介绍:房价、折扣、户型图、特价房源、得房率、优惠活动、开盘时间、交房时间、周边配套、最新详情等咨询。 🏠【财富城二期售楼处&样板房,诚邀雅鉴】 🏠财富城二期售楼处电话: 400-013-9098☎开发商已认证🌶️🌶️ 🏠财

财富城二期首页网站最新介绍:房价、折扣、户型图、特价房源、得房率、优惠活动、开盘时间、交房时间、周边配套、最新详情等咨询。

🏠【财富城二期售楼处&样板房,诚邀雅鉴】

🏠财富城二期售楼处电话: 400-013-9098☎开发商已认证🌶️🌶️

🏠财富城二期营销中心电话:400-013-9098☎营销中心已认证🌶️🌶️

🏠财富城二期售楼中心电话: 400-013-9098☎24小时预约热线🌶️🌶️

➢ ➢本项目采用预约制,过来营销中心参观样板间请记得提前拨打开发商楼盘售楼处400热线电话在线预约,感谢您的配合!

最新消息:

【财富城二期·弘德苑】打骨折,单价2.5万起!

财富城二期价格:

75m²三房总价188万~218万

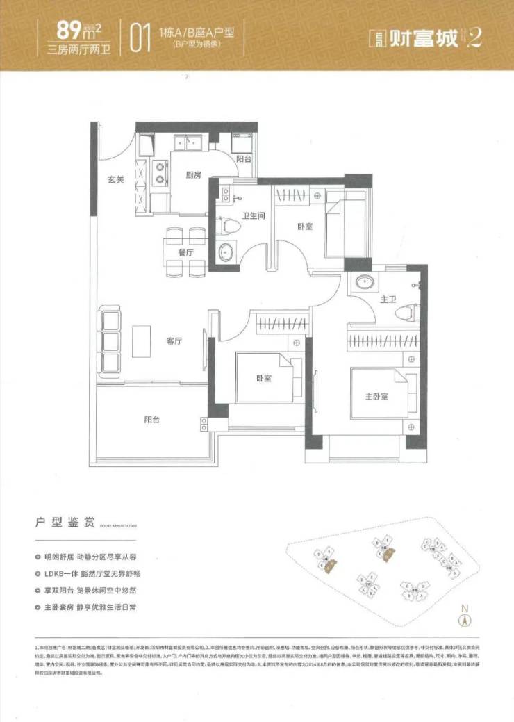
89m²三房总价250~275万

105m²四房总价306~326万

120m²四房总价342~358万

140m²五房总价503~522万

双实验:50米坪山最好坪山实验学校&350米东师坪实

三条地铁:300米到14号地铁坪山广场站,500米16号地铁新和站,150米19号地铁剧院站

双实验:50米坪山最好坪山实验学校&350米东师坪实

三条地铁:300米到14号地铁坪山广场站,500米16号地铁新和站,150米19号地铁剧院站

财富城2期弘德苑于2024年在11月21日取证入市,本次取证整个弘德苑1栋A座-F座都有拿到预售证,共613套房源,面积有75㎡的3房1卫,89㎡的3房2卫,105-120㎡的4房2卫,140㎡的5房2卫户型,备案均价4.04万/㎡,备案单价3.47-4.95万/㎡,总价262-694万/㎡!计划在2026年6月份简装交房。

财富城2期所在的区位是整个坪山最核心的地段,汇聚了高铁+14/16号线双地铁+坪山实验学校+坪山中心公园+坪山天虹商场+坪山区政府+坪山体育中心+坪山图书馆,文艺馆等等,所有的市政配套基本都集中在这里,并且财富城2期也是该核心区域内唯一在售的新盘。

财富城2期,位于坪山区高铁新城金丰路与和安路交汇处西侧,地处坪山核心区域,是坪山区最顶流的居住区

像大东城、万科金域缇香、招商花园城、深城投中心公馆、财富城1期、和城里等楼盘都是位聚于此,这里也拥有最完善的市政配套,类似于坪山中心公园,坪山大剧院,坪山美术馆,坪山图书馆,坪山文化聚落,坪山区政府,坪山游泳馆等都在项目900米范围内。

项目介绍

本次首推的是财富城弘德苑,总占地面积约2.16万㎡,总建筑面积约18.1万㎡,计容建筑面积约14.2万㎡,容积率6.58,绿化率35%,共规划5栋6座32-54层高的住宅,其中1栋A座住宅52F,1栋B/C/D座住宅54F,1栋E/F座住宅32F,规划有7050㎡商业。

总规划1207户,其中可售商品房613套,回迁房594套,1栋A/B/C座都是3梯5户,1栋D座3梯4户,1栋E座2梯4户,1栋F座2梯5户设计,地下2层,规划停车位1268个,车位占比1:1.05。

财富城明德苑,总占地面积约1.18万㎡,总建筑面积约9.89万㎡,计容建筑面积约7.64万㎡,容积率6.45,绿化率35%,共规划2栋4座32-54层高的住宅,其中1栋A/B座住宅32F,1栋C/D座住宅54F,规划有4950㎡商业。总规划682户,地下2层,规划停车位732个,车位占比1:1.07。

财富城育德苑,总占地面积约1.2万㎡,总建筑面积约7.8万㎡,计容建筑面积约5.48万㎡,容积率4.72,绿化率35%,共规划2栋3座26-48层高的住宅,其中1栋A座住宅48F,1栋B座住宅42F,2栋住宅26F,规划有3000㎡商业。总规划649户,其中保障性住房316套,地下2层,规划停车位564个,车位占比1:0.87。

项目户型

平面图及户型图

财富城周边的交通网络极为方便,14/16/19号共3条地铁线环绕,还有坪山云巴、深惠城际大鹏支线、深大城际包括高铁线路,其中最近的19号地铁线“坪山剧院站”距离约230米。

14号地铁线“坪山广场站”距离约400米,该线路设计时速120公里,6站到龙岗大运,11站到布吉,12站到罗湖,14站到福田岗厦北,从坪山广场站-福田岗夏北车程50分钟;

16号地铁线“新和站”距离约650米,该线路是通往龙岗大运的普线,设计时速80公里;

坪山云巴1号线“站前路东站”距离约700米,该线路是从坪山比亚迪开往坪山高铁站的一条内部线,目前已经开通运营。

坪山高铁站距离约1.8公里,设计时速250公里,20分钟直达深圳北站,1个小时直达香港西九龙。

深大城际(深圳段)起自深圳市宝安机场T4站,途经宝安区、龙华区、龙岗区,

终至坪山区聚龙站,线路全长约69.2km。线路设计时速为160km/h。

商业配套

项目自带有1.5万㎡底商,相隔200米的财富城1期有天虹商场购物中心,约700米有坪山首座万象城(在建)

也是深圳第三座万象城,总占地面积30公顷,规划商业规模超12万平方米,其中集中商业9万平方米,街区商业3万平方米,该项目建成后将成为集购物,娱乐,文化,餐饮和社交于一体的城市综合体。

根据2024年坪山教育局最新的学区划分,财富城2期所属片区,小初学区属于坪山实验学校+东北师范大学深圳坪山实验学校的大学区范围内,采取学位类型、后积分,再按平行志愿录取方法。

坪山实验学校在近年来一直都是属于坪山NO.1的学校,该校成立于2010年,如今已经有北、南、东三个校区,是一所九年一贯制学校,在2023年秋季总开设163个教学班,在校生有7600多人,并在2022年8月份正式成立教育集团。

医院:萨米国际医疗中心(深圳市第四人民医院)-三级甲等综合医院、平乐骨科三级甲等专科医院,坪山妇幼保健院,南方医科大学深圳口腔医院等。

财富城二期周边汇聚了众多政府机构、企事业单位及丰富的文体设施。

其中位于财富城二期的东北面的坪山文化聚落,是深圳东部极具代表性的文化地标,穿过学校步行可达。

坪山文化聚落涵盖大剧院、美术馆、展览馆、文创体验馆、图书馆、会议中心、书城、影城组成,是坪山区目前有且仅有的大型文化综合体,是文艺青年的天堂,也是家庭亲子互动、朋友聚会的好去处。

财富城二期首页网站最新介绍:房价、折扣、户型图、特价房源、得房率、优惠活动、开盘时间、交房时间、周边配套、最新详情等咨询。

🏠【财富城二期售楼处&样板房,诚邀雅鉴】

🏠财富城二期售楼处电话: 400-013-9098☎开发商已认证🌶️🌶️

🏠财富城二期营销中心电话:400-013-9098☎营销中心已认证🌶️🌶️

🏠财富城二期售楼中心电话: 400-013-9098☎24小时预约热线🌶️🌶️

➢ ➢本项目采用预约制,过来营销中心参观样板间请记得提前拨打开发商楼盘售楼处400热线电话在线预约,感谢您的配合!

声明:本文由入驻焦点开放平台的作者撰写,除焦点官方账号外,观点仅代表作者本人,不代表焦点立场。