华侨城新玺(售楼处)首页网站-华侨城新玺售楼处电话(营销中心)-华侨城新玺欢迎您-楼盘详情-400热线中心@售楼处
扫描到手机,新闻随时看
扫一扫,用手机看文章
更加方便分享给朋友
✅华侨城新玺【已认证】
⭐华侨城新玺销售中心电话:400-013-9098【已认证】⭐⭐⭐
⭐华侨城新玺售楼处电话:400-013-9098【已认证】⭐⭐⭐
⭐华侨城新玺营销中心电话:400-013-9098【已认证】⭐⭐⭐
在售户型图丨项目介绍丨最新房源丨周边配套丨详细解答〢
⭐◆开发商营销中心诚挚邀请,一键预约,尊享内部折扣!匠心独运的精品项目,恭候您的品鉴与选择。⭐
✅ 过来参观样板房烦请记得提前来电预约!
✅ 为您安排楼盘现场销售全程接待并讲解,给您更贴心的看房体验!
【项目简介】
项目:华侨城.新玺
开发商:华侨城新玺发展有限公司
物业类型:公寓 商办
地址:深圳市南山区湾厦路1号
占地面积:2.5万㎡
建筑面积:28.9万㎡
总户数:210户
栋数:3栋
产权:40年(18-58年)
容积率:7.42
层高:3.6-4米
梯户比:3梯1户,3梯2户
总层:38-57层
户型:232-280㎡3房,320-400㎡4房,468-610㎡5-6房
交楼标准:精装
交楼时间:2023年12月31日
车位:660个
绿化率:30%
物业:华侨城新玺物业
物业费:14.8元/㎡
央企华侨城深耕深圳36年
华侨城集团,自1985年起根植深圳,系国务院国资委直属的大型中央企业,凭借卓越实力与前瞻视野,领航文化旅游新纪元。集团深耕欢乐谷、锦绣中华民俗文化村、世界之窗及东部华侨城等标志性文旅项目,成功塑造了“旅游+地产”的黄金模式,不仅引领行业风向,更促进了文化、旅游的深度融合。在此基础上,华侨城集团不断拓展业务版图,现已形成涵盖文化产业、旅游度假、新型城镇化建设、电子科技创新及多元化投资在内的五大核心发展引擎,持续推动产业升级与城市发展,展现央企的责任与担当。
寰海标杆之作,定鼎海岸传奇
【品牌】36载华侨城,实力央企的品牌创想
【区域】蛇口联动前海、深圳湾,三大千亿级经济中心叠加发展
【地段】三面环海半岛,深圳湾线绝版地段,成就世界海岸的坐标
【景观】纵览270°海景,15公里滨海长廊上盖,物尽珍藏,与自然无间
【配套】集结湾区首屈一指的文化艺术坐标,高端商业配套环伺,奢享国际都市生活场
【产品】250米地标级超高层,定鼎深湾之作,4m舒阔层高,只此再无
【酒店&商业】一线酒店品牌酒店入驻,立体开放式悦享天地,奢享全优配套
项目配套:
配套设施
内部配套:配备高端私密会所、约 766 平方米的深圳首个悬空无边际海景泳池、首层城市花园、健身房、儿童游乐区以及 1800 平方米的海洋博物馆等设施。
商业配套:项目自带约 5 万平方米的商业设施,由华润运营,周边还有海上世界、海岸城等高端商业配套。
教育资源:周边有半岛第二幼儿园、南海玫瑰为明幼儿园、双玺幼儿园、蛇口幼儿园、半岛第三幼儿园等幼儿园,以及南山外国语学校(集团)滨海学校、太子湾学校等优质中小学。
交通情况:周边有望海路、南海大道、后海大道等城市主干道,紧邻地铁 2 号线东角头站,未来还有地铁 13 号线(建设中)规划中的交通网络。此外,项目毗邻蛇口国际邮轮母港,可迅速连接深圳国际机场、香港国际机场等城市核心交通枢纽。
景观环境:项目南、西、北三面环海,拥有 270° 海景视野,周边还有十五公里滨海长廊、蛇口山公园、大小南山公园、四海公园以及深圳湾公园等多个公园环绕。


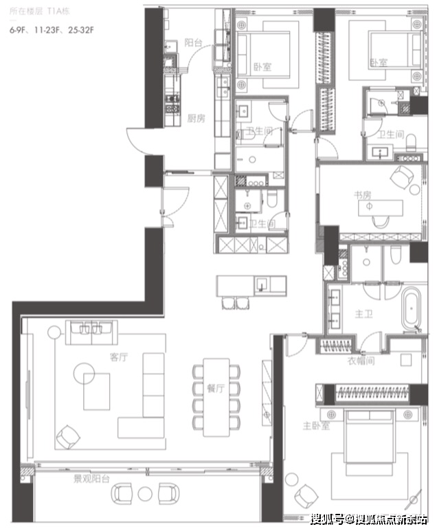
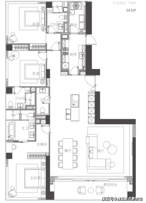
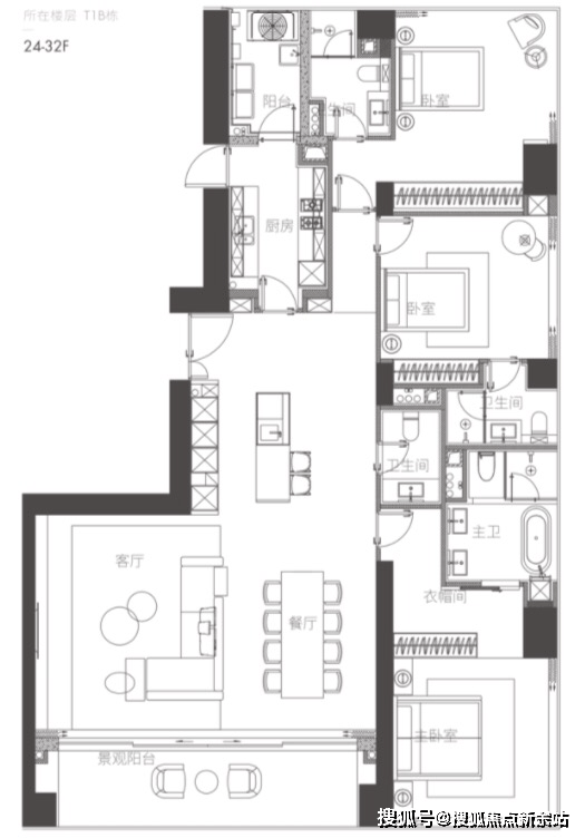
【户型亮点】:1超9米超宽幕开间,厅出阳台一线海景,三套房设计,主卧L形全景落地窗,270°最佳观海位,动静分区布局有序。02户型 约230㎡ 三房两厅三卫03户型 约230㎡ 三房两厅三卫南、北,双面景观视野看深圳湾海景、内海景、城市景观



08户型 东端户 约280㎡ 四房两厅四卫南、东、北,三面景观视野看深圳湾海景、内海景、城市景观


✅华侨城新玺【已认证】
⭐华侨城新玺销售中心电话:400-013-9098【已认证】⭐⭐⭐
⭐华侨城新玺售楼处电话:400-013-9098【已认证】⭐⭐⭐
⭐华侨城新玺营销中心电话:400-013-9098【已认证】⭐⭐⭐
在售户型图丨项目介绍丨最新房源丨周边配套丨详细解答〢
⭐◆开发商营销中心诚挚邀请,一键预约,尊享内部折扣!匠心独运的精品项目,恭候您的品鉴与选择。⭐
✅ 过来参观样板房烦请记得提前来电预约!
✅ 为您安排楼盘现场销售全程接待并讲解,给您更贴心的看房体验!
声明:本文由入驻焦点开放平台的作者撰写,除焦点官方账号外,观点仅代表作者本人,不代表焦点立场。
