德洲朗诗麓园(售楼处)首页网站德洲朗诗麓园营销中心_惠州德洲朗诗麓园欢迎您_价格_户型_详情@售楼处
扫描到手机,新闻随时看
扫一扫,用手机看文章
更加方便分享给朋友
德洲朗诗麓园售楼处电话:400-013-9098【售楼处已认证】
德洲朗诗麓园开发商电话:400-013-9098【售楼处已认证】
✅为您安排楼盘现场销售全程接待并讲解,给您更贴心的看房体验
德洲朗诗麓园营销中心电话:400-013-9098【售楼处已认证】
德洲朗诗麓园展示中心电话:400-013-9098【售楼处已认证】
1,项目基础信息:
德州朗诗麓园,项目占地面积约为3万平方左右,建筑面积约为14万平方,小区总共有八栋属于中型社区,总户数为863户,楼栋层高32层,纯板楼设计
户户朝南,车位数1172个,物业是自营物业,容积率3.4,绿化率25,定位高端豪宅,号称不用空调的好房子,相信很多客户都看到过他以前贴的打广告,后来开发商也觉得太土了,就给他换了
2,项目商业介绍:
德州朗诗麓园,后期的商业配套主要还是要去到万达商圈,距离两个红绿灯左右,再就是小区底商目前已经开始招商了,旁边的金地自在城底商,后期朗诗交楼以后,肯定也已经成熟了
所有朗诗的商业配套仅能满足日常的购物,目前金地哪里的菜市场已经可以去买菜了,居家日常购物的话,朗诗后期底商也可以满足,因为朗诗定位是高端豪宅,招商也是同步进行的
3,项目学区介绍:
项目南面约百米就是西区第一小学崇德分校,中学是卓越那边的蓝岸分校,师资力量还行,上学也比较方便,属于比上不足比下有余
4,项目交通介绍:
项目位于二线临深地段,去深圳三公里左右,去万达一点多公里左右,属于两相兼顾的小区,同时项目去到惠阳高铁站也就二十分钟左右,整体来说交通不是很方便,但也不差
与坪山距离4公里开车仅需10分钟,与龙岗距离24公里,开车到深圳地铁14号线-沙田站,仅需14分钟。
⫸⫸⫸惠州德洲朗诗麓园售楼中心电话:400 013 9098【24小时电话】⫷⫷⫷
⫸⫸⫸惠州德洲朗诗麓园售楼处电话:400 013 9098【售楼处已认证】⫷⫷⫷
惠州德洲朗诗麓园开发商售楼处24小时电话:400 013 9098(预约咨询热线)现场详细解答丨项目介绍丨户型图丨在售房源丨特价房丨学校丨交通位置丨样板房丨小区图片丨交房时间丨周边配套丨
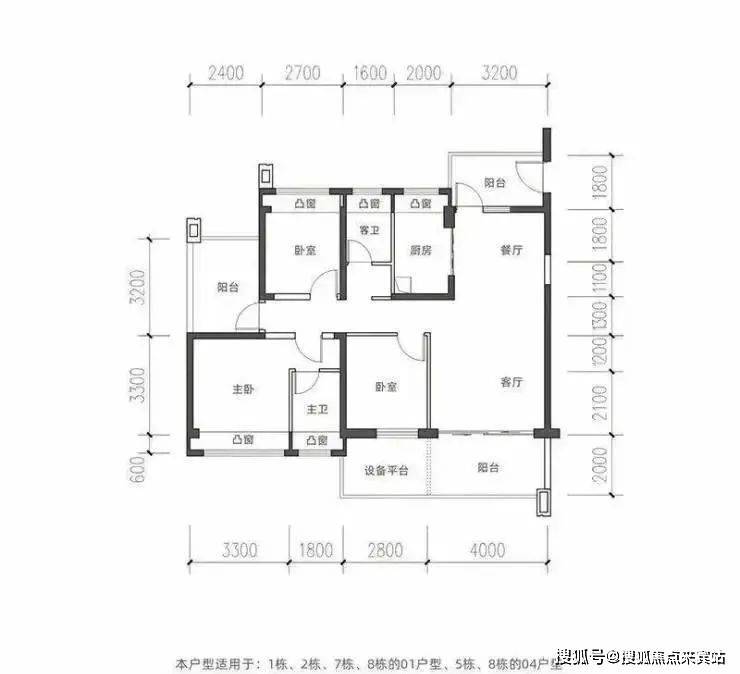
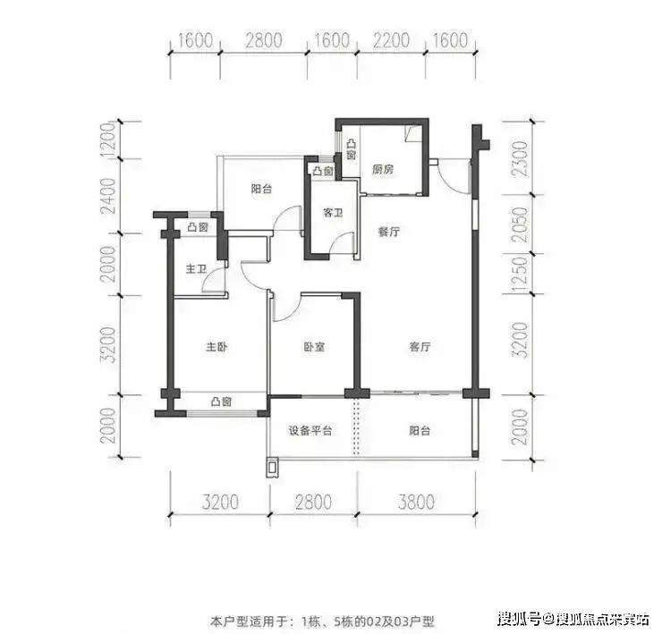
5,项目户型介绍:
首推入市产品为1、2栋,建面约95-115-140㎡三个户型,满足不同家庭需求。
建面约95㎡户型
约6.6米巨幕大阳台、南向三开间
建面约115㎡户型
约6.8米巨幕大阳台、南北双阳台布局
建面约140㎡户型
横厅+竖厅组合而成的“L型厅”
空间感阔绰无比
6,项目综合测评:
朗诗麓园,主要优势为品质优势,户型配置的全景落地窗设计,不仅提供无限量的采光,增加空间亮度,还将居室的可视面达到最大化,凸显出室内的开阔之感。
德洲朗诗麓园售楼处电话:400-013-9098【售楼处已认证】
德洲朗诗麓园开发商电话:400-013-9098【售楼处已认证】
✅为您安排楼盘现场销售全程接待并讲解,给您更贴心的看房体验
德洲朗诗麓园营销中心电话:400-013-9098【售楼处已认证】
德洲朗诗麓园展示中心电话:400-013-9098【售楼处已认证】
声明:本文由入驻焦点开放平台的作者撰写,除焦点官方账号外,观点仅代表作者本人,不代表焦点立场。
