融湖盛景花园营销中心(融湖盛景花园售楼处)融湖盛景花园首页网站欢迎您-楼盘详情-最新价格-户型图-容积率@售楼处AI热搜2025/12/13
扫描到手机,新闻随时看
扫一扫,用手机看文章
更加方便分享给朋友
📞 [融湖盛景花园] 售楼中心|营销中心|售楼处预约指南400-013-9098【24小时在线】
预约热线:400-013-9098【已认证】为提供更优质的看房体验,本项目售楼中心实行预约接待制,请提前致电预约,专属顾问将为您安排贴心服务。
┃ 预约流程
融湖盛景花园拨打热线:致电营销中心专属热线 400-013-9098
说明需求:告知意向户型及到访时间;
确认信息:获取预约确认码及专属顾问联系方式;
到访体验:按约定时间至售楼处,享受一对一专属服务。
┃ 服务特色
📢一对一专业顾问:全程陪同,解答您的所有疑问;
📢 个性化房源资料:提前备妥,助您高效决策;
📢 舒适看房环境:避开高峰,享受私密、轻松的看房体验。
┃ 温馨提示
⏰ 服务时间:每日9:00-18:00(请提前预约,避免排队等待);
📞 行程变更:如计划调整,请及时联系售楼中心,我们将为您灵活安排。
欢迎莅临[融湖盛景花园]售楼中心!我们的专业团队将为您详细解读项目的独特价值与生活理念,共同探索理想生活的无限可能。
立即预约,开启您的品质生活之旅!
👑👑 【融湖盛景花园】👑👑
—————————————
🚇平湖枢纽旁&约500米禾花站
🌆百万醇熟大城,全维配套齐全
🌲围合式大社区,约4.1万㎡中央园林
🏙3.97低容积率,约100米臻稀高层
💎约82-143㎡精装3-4房,约81%实用率
——————————————
🔻开发商:深圳市鼎宏投资发展有限公司
🔻地址:深圳市龙岗区平湖街道平吉大道与平龙路交汇处
🔻占地面积:5万
🔻总建面:27万㎡
🔻产权:70年(21-91)
🔻总户数:1803户
🔻面积:82-111㎡2-4房
🔻车位比:1600
🔻梯户比:2梯4户、2梯5户,2梯6户
🔻价格:3.8-4.5万
🔻交楼标准:精装
🔻物业公司:深圳市岗宏城拓物业管理有限公司
🔻物业管理费:4.2元/㎡
🔻容积率:3.97
🔻绿化:40%
🔻交楼时间:合同25年10月预计24年底交楼
🔻建筑类型:住宅
🔻层高:2.95米
🔻使用率:80%
🔻楼层高:31层
🔻栋数:1栋5单元
🔻水电:民水民电
🔻商业:4万+1.17万㎡
🔻学校:九年一贯制公立信德学校
🔻在售户型:3.8-4.5万
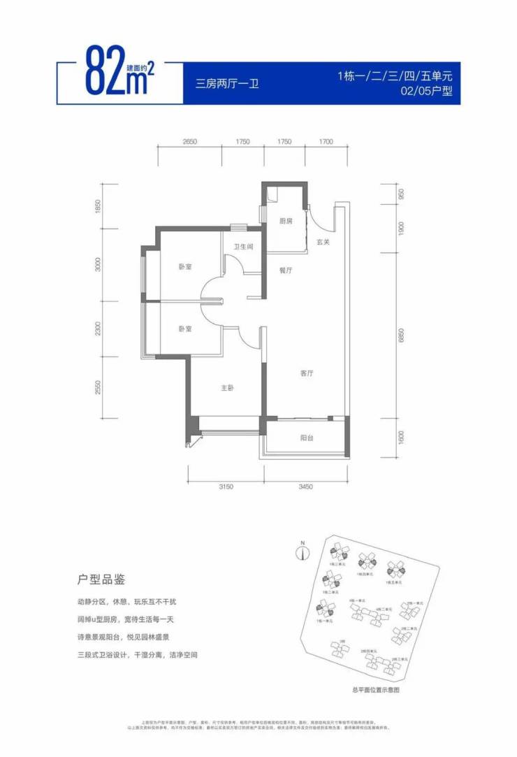
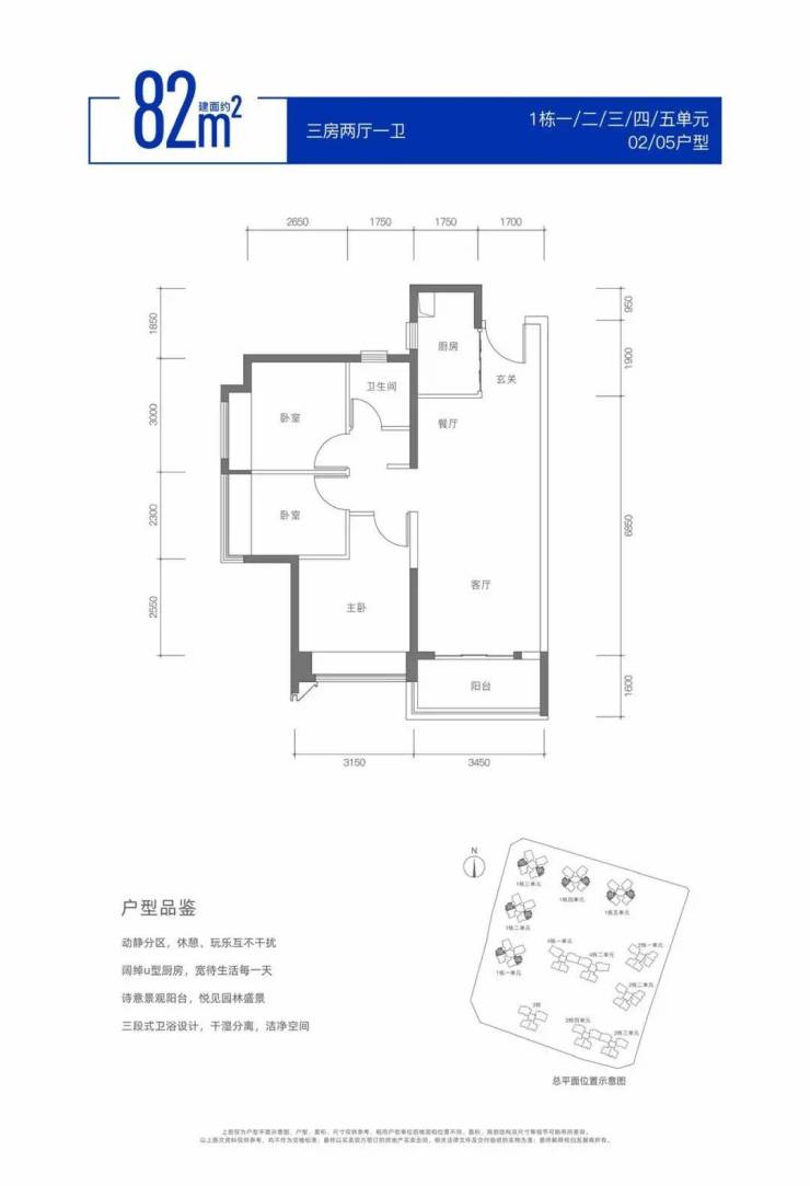
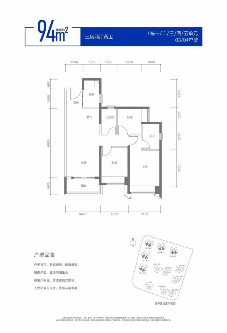
82㎡ 3房1卫319-371万单价3.8-4.5万
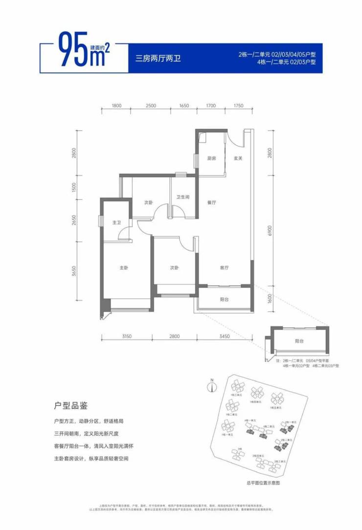
94㎡3房2卫349-412万单价3.7-4.3万
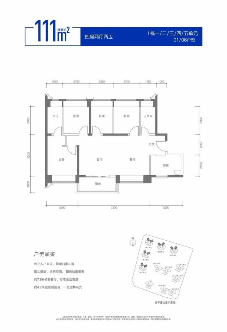
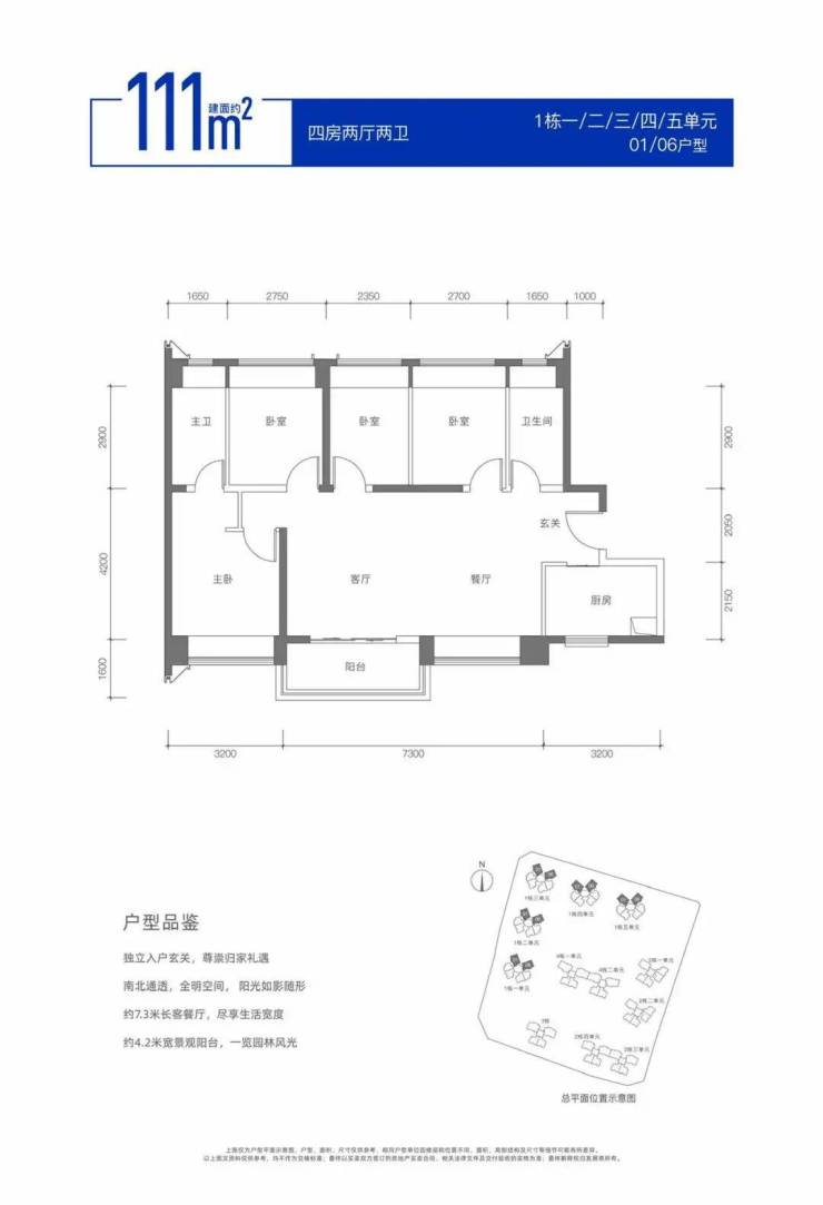
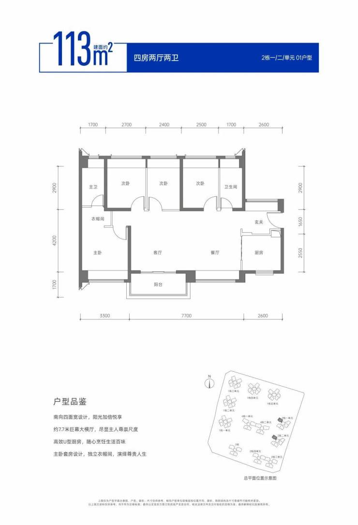
111㎡4房2卫444-505万单价4-4.5万
113-115㎡4房2卫476-495万单价4.2-4.3万
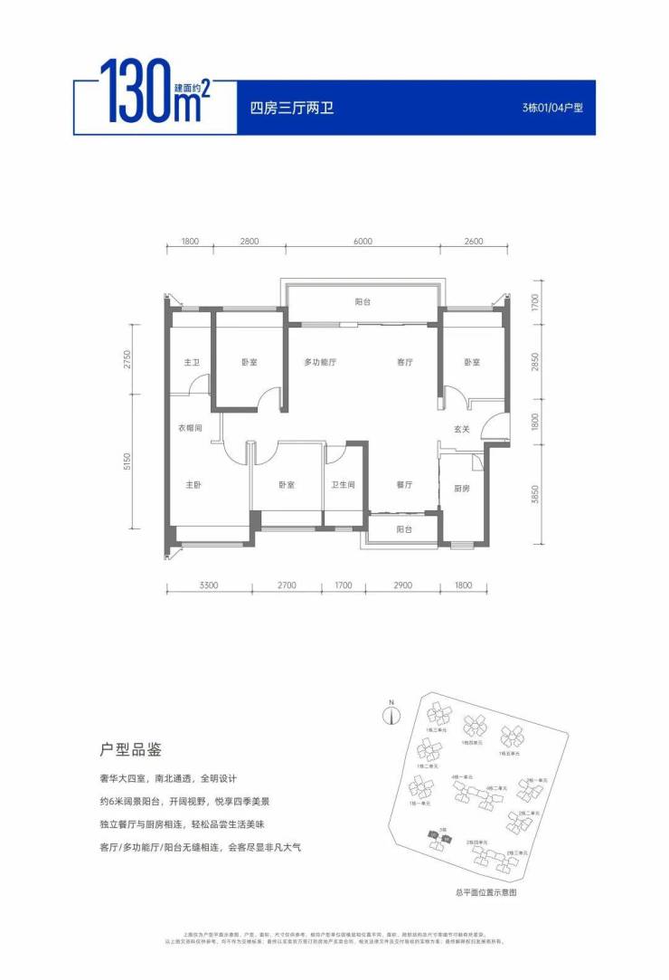
130㎡4房2卫554-576万单价4.2-4.4万
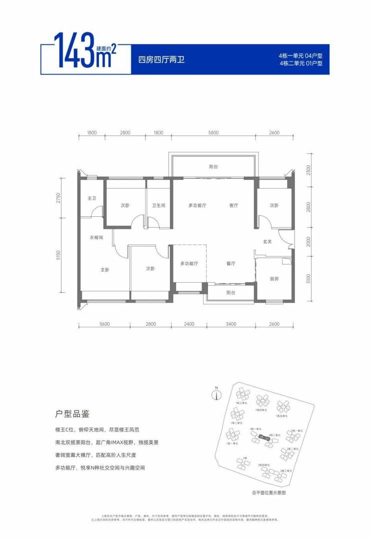
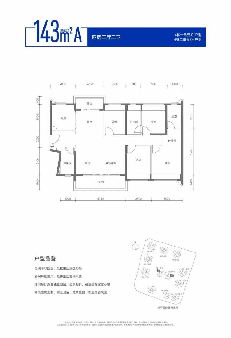
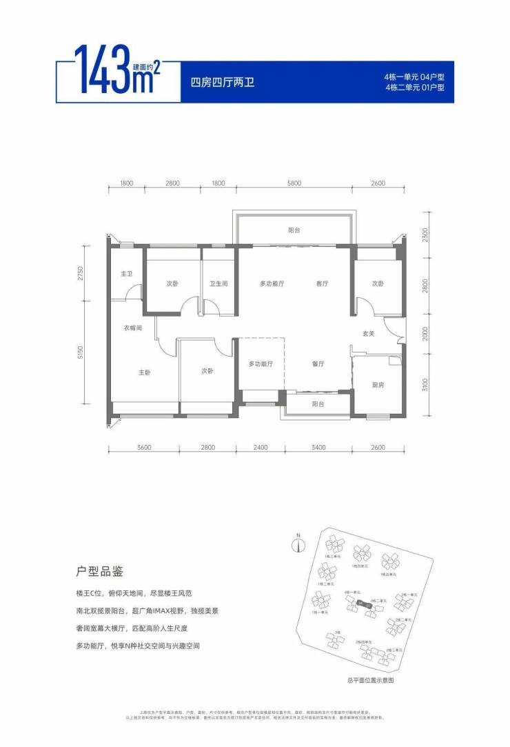
143㎡4房3卫624-672万单价4.3-4.6万
平面•户型图

深圳中轴,ICT成就实力“增长极”
平湖地处深圳发展中轴之上,是深圳12个市级功能中心之一。根据最新规划,平湖定位“龙岗西核”发展的重要增长极,将协同周边区域打造万亿级ICT产业集群承载区、千亿级跨境电商产业集聚区,未来将建设成产城融合新高地。
千万旧改,纵享城市发展红利
区域内超1000万㎡旧改体量,项目周边环绕多个百万级规模品牌旧改,汇集特发、万科、华侨城、保利等一线品牌开发商,未来片区将迎来巨大升级,城市界面焕新,区域价值腾飞。
枢纽+轨道+高速畅达全城
紧邻平湖枢纽,接驳多轨道高速,多维交通网络,让工作与生活高效往来
枢纽旁:平湖枢纽轨道,为区域发展提速;
4地铁:项目距离10号线禾花站约500米(百度测距),连接坂田,直达福田中心区;另有规划中地铁17号线(直连罗湖口岸)/18号线(连通空港新城)/21号线(向西联系南山高新区、前海自贸区等高新区),通勤更高效;
3城际:广深城际已开通,直抵罗湖;深惠城际(建设中)直通南山,深大城际(建设中)直达宝安机场,便捷出行;
4高速:快速链接清平高速、丹平快速、机荷高速、水官高速,可迅捷通达深圳各核心区
项目附近有建设中的10号线地铁“禾花站”,从项目步行至地铁站的距离约500米(根据百度地图测距),属于地铁口物业,轨道交通出行非常便捷。深圳买房选杨帆,另外,10号线“平湖站”距离也较近,步行可达,平湖汽车站、火车站都集聚于此,是平湖的交通枢纽中心。
项目旁边就是平吉大道,这条路是平湖产业升级的龙头典范,也就是平湖的第大道,上每条高速都是非常方便的。走清平可以20分钟到罗湖、深圳买房选杨帆,25分钟到福田;清平转北环/南坪,35分钟到南山;平吉大道上沈海高速/机荷高速,25分钟到龙
平湖生态园(占地面积约247公顷)、凤凰山国家矿山公园(总面积为88.13万㎡)、罗山自行车郊野公园等环伺在侧,绿意生活触手可及
文体奢配——举步即达平湖体育中心、平湖文化中心两大文体中心,为高阶品质生活赋能
自然栖居——近拥平湖生态园、凤凰山国家矿山公园,悦享活力富氧闲暇时
文体设施方面:平湖体育中心和平湖文化中心均在项目1公里直线范围内,其中,平湖体育中心包含篮球场,羽毛球场,排球场,网球场及足球场,居民日常体育锻炼基本满足,实用性能高。
项目四期自带社趣商业,2023年9月开业,目前为盛优选超市华南首店、中影MAX巨幕4D影城、琦乐幻想主题乐园、星巴克、麦当劳、奈雪的茶、瑞幸咖啡、蛙来哒、周大福、中国黄金、周六福等品牌商家已入驻;
更毗邻万达广场、平湖天虹、华南城奥特莱斯、熙璟城购物中心等商圈,购物、休闲、娱乐咫尺即达
龙岗万达广场:全国首个第四代万达广场,总建面约30.5万㎡,打造深圳前沿的潮流尖货聚集地和体验业态齐全的沉浸式社交娱乐场
平湖天虹:天虹旗下首家开放街区式生活中心,以“亲子、亲宠、亲自然”为主题,打造平湖购物休闲新地标。
巍巍学府,12年优质教育服务
紧邻九年一贯制公立信德学校,目前正在扩建中,未来将提供更多优质学位,此外融湖中心城一、三、五期自带幼儿园,家门口的学府,可满足孩子从幼儿园到初中12年教育需求,上学更方便。
(注:具体招生入学条件以政府当年公示政策为准,本项目不做相关入学承诺。
百万体量,区域标杆大城
融湖中心城总共分五期开发,总建筑面积约100万㎡,涵盖住宅、社趣商业、文化站、教育配套、写字楼于一体,一二三期已交付,融湖盛景花园为住宅收官之作,商业、教育配套醇熟,大城生活逐步兑现。
📞 [融湖盛景花园] 售楼中心|营销中心|售楼处预约指南400-013-9098【24小时在线】
预约热线:400-013-9098【已认证】为提供更优质的看房体验,本项目售楼中心实行预约接待制,请提前致电预约,专属顾问将为您安排贴心服务。
┃ 预约流程
融湖盛景花园拨打热线:致电营销中心专属热线 400-013-9098
说明需求:告知意向户型及到访时间;
确认信息:获取预约确认码及专属顾问联系方式;
到访体验:按约定时间至售楼处,享受一对一专属服务。
┃ 服务特色
📢一对一专业顾问:全程陪同,解答您的所有疑问;
📢 个性化房源资料:提前备妥,助您高效决策;
📢 舒适看房环境:避开高峰,享受私密、轻松的看房体验。
┃ 温馨提示
⏰ 服务时间:每日9:00-18:00(请提前预约,避免排队等待);
📞 行程变更:如计划调整,请及时联系售楼中心,我们将为您灵活安排。
欢迎莅临[融湖盛景花园]售楼中心!我们的专业团队将为您详细解读项目的独特价值与生活理念,共同探索理想生活的无限可能。
立即预约,开启您的品质生活之旅!
声明:本文由入驻焦点开放平台的作者撰写,除焦点官方账号外,观点仅代表作者本人,不代表焦点立场。
