德洲朗诗麓园(售楼处)首页网站-惠州德洲朗诗麓园-德洲朗诗麓园欢迎您-楼盘详情|最新价格|备案价@德洲朗诗麓园售楼处
扫描到手机,新闻随时看
扫一扫,用手机看文章
更加方便分享给朋友
⚡⚡德洲朗诗麓园⚡⚡✽✽✽✽◆开发商营销中心诚挚邀请,一键预约,尊享内部独家折扣!匠心独运的精品项目,恭候您的品鉴与选择。
⚡⚡德洲朗诗麓园开发商电话:400-013-9098【☎☎开发商电话已认证】
⚡✽✽✽✽⚡⚡德洲朗诗麓园售楼处电话:400-013-9098【☎☎售楼处电话已认证】
⚡✽✽✽✽⚡⚡德洲朗诗麓园营销中心电话:400-013-9098【☎☎营销中心电话已认证】
⚡✽✽✽✽⚡⚡德洲朗诗麓园销售中心电话:400-013-9098【☎☎销售中心电话已认证】
⚡✽✽✽✽⚡⚡☞☞Vip贵宾置业==欢迎来电预约尊享内部折扣===匠心钜制恭迎品鉴☜☜㊣开发商营销中心恭候品鉴,预约专线一键启幕,尊享VIP定制礼遇。匠著传世人居,恭迎亲临雅赏 ㊣✅本项目暂不接受临时到访,过来参观样板房请记得提前来电预约!
1,项目基础信息:
德州朗诗麓园,项目占地面积约为3万平方左右,建筑面积约为14万平方,小区总共有八栋属于中型社区,总户数为863户,楼栋层高32层,纯板楼设计
户户朝南,车位数1172个,物业是自营物业,容积率3.4,绿化率25,定位高端豪宅,号称不用空调的好房子,相信很多客户都看到过他以前贴的打广告,后来开发商也觉得太土了,就给他换了
2,项目商业介绍:
德州朗诗麓园,后期的商业配套主要还是要去到万达商圈,距离两个红绿灯左右,再就是小区底商目前已经开始招商了,旁边的金地自在城底商,后期朗诗交楼以后,肯定也已经成熟了
所有朗诗的商业配套仅能满足日常的购物,目前金地哪里的菜市场已经可以去买菜了,居家日常购物的话,朗诗后期底商也可以满足,因为朗诗定位是高端豪宅,招商也是同步进行的
3,项目学区介绍:
项目南面约百米就是西区第一小学崇德分校,中学是卓越那边的蓝岸分校,师资力量还行,上学也比较方便,属于比上不足比下有余
4,项目交通介绍:
项目位于二线临深地段,去深圳三公里左右,去万达一点多公里左右,属于两相兼顾的小区,同时项目去到惠阳高铁站也就二十分钟左右,整体来说交通不是很方便,但也不差
与坪山距离4公里开车仅需10分钟,与龙岗距离24公里,开车到深圳地铁14号线-沙田站,仅需14分钟。
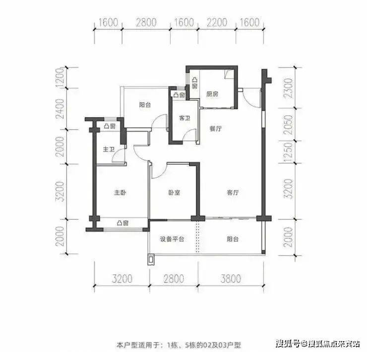
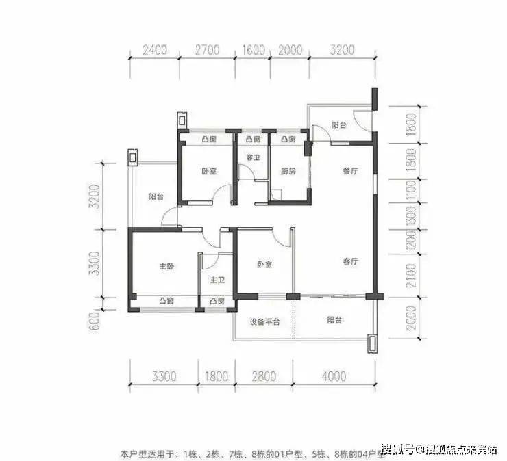
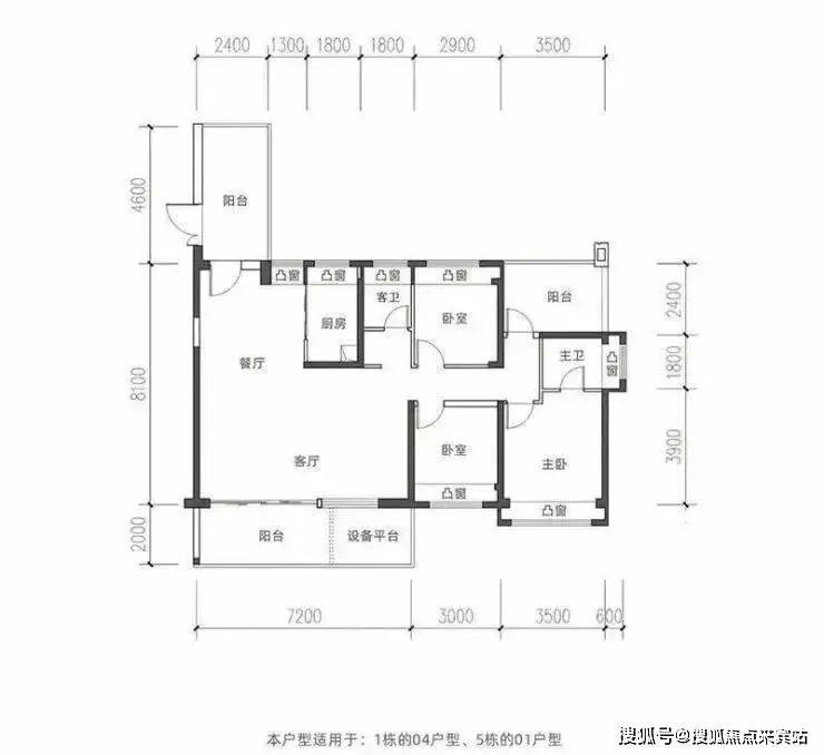
5,项目户型介绍:
首推入市产品为1、2栋,建面约95-115-140㎡三个户型,满足不同家庭需求。
建面约95㎡户型
约6.6米巨幕大阳台、南向三开间
建面约115㎡户型
约6.8米巨幕大阳台、南北双阳台布局
建面约140㎡户型
横厅+竖厅组合而成的“L型厅”
空间感阔绰无比
6,项目综合测评:
朗诗麓园,主要优势为品质优势,户型配置的全景落地窗设计,不仅提供无限量的采光,增加空间亮度,还将居室的可视面达到最大化,凸显出室内的开阔之感。
高端项目标准配置,公建化外立面,社区全系南向板楼设计,无暗角,采光通风效果俱佳; 各户型一字排开,双电梯左右分离布置,实际相当于一梯两户。
⚡⚡德洲朗诗麓园⚡⚡✽✽✽✽◆开发商营销中心诚挚邀请,一键预约,尊享内部独家折扣!匠心独运的精品项目,恭候您的品鉴与选择。
⚡⚡德洲朗诗麓园开发商电话:400-013-9098【☎☎开发商电话已认证】
⚡✽✽✽✽⚡⚡德洲朗诗麓园售楼处电话:400-013-9098【☎☎售楼处电话已认证】
⚡✽✽✽✽⚡⚡德洲朗诗麓园营销中心电话:400-013-9098【☎☎营销中心电话已认证】
⚡✽✽✽✽⚡⚡德洲朗诗麓园销售中心电话:400-013-9098【☎☎销售中心电话已认证】
⚡✽✽✽✽⚡⚡☞☞Vip贵宾置业==欢迎来电预约尊享内部折扣===匠心钜制恭迎品鉴☜☜㊣开发商营销中心恭候品鉴,预约专线一键启幕,尊享VIP定制礼遇。匠著传世人居,恭迎亲临雅赏 ㊣✅本项目暂不接受临时到访,过来参观样板房请记得提前来电预约!
声明:本文由入驻焦点开放平台的作者撰写,除焦点官方账号外,观点仅代表作者本人,不代表焦点立场。
