华侨城新玺售楼处电话(华侨城新玺售楼处)首页网站-华侨城新玺营销中心欢迎您-楼盘详情-最新价格-户型图-容积率@2025/09/22售楼处AI热搜
扫描到手机,新闻随时看
扫一扫,用手机看文章
更加方便分享给朋友
⭐⭐华侨城新玺售楼处电话☎:400-013-9098【售楼处认证】⭐⭐⭐⭐
⭐⭐华侨城新玺营销中心电话☎:400-013-9098【营销中心认证】⭐⭐⭐⭐
⭐⭐华侨城新玺销售中心电话☎:400-013-9098【销售中心认证】⭐⭐⭐⭐
坐落于深圳湾畔的绝版地段,华侨城新玺项目以其无可复制的天赋稀贵,重新定义了国际滨海豪宅的巅峰标准。作为深圳未来三十年发展蓝图中最为璀璨的明珠,它处于前海、蛇口与深圳湾三大千亿级经济板块交汇的黄金核心,承载着城市向世界级滨海都会跃升的时代使命。
项目由实力央企华侨城匠心打造,秉承其三十六载筑城经验与品牌创想,以一座总建筑面积约28.9万平方米的恢宏综合体,融合高端公寓、甲级办公、奢华酒店与文化艺术场所于一体。
其中最引人注目的,莫过于那栋耸入云霄的250米地标超塔,以“定鼎海岸传奇”之姿,成为湾区天际线中令人瞩目的存在。
建筑美学方面,新玺堪称一曲凝练现代设计语汇与自然山海意境的空间诗篇。外立面采用航空级铝板与LOW-E超白玻璃幕墙体系,在日光下流转如波光粼粼的海面,夜晚则如镶嵌于湾区的玲珑珠宝。极具表现力的横向线条与垂直构件相结合,既减轻了风阻,又形成极具韵律的光影效果,远望如海浪叠涌,又与天际形成柔和的对话。
最具标志性的是其“三面环海”的半岛布局,匠心独运的蝶形建筑排布,使绝大多数户型享有270°极致海景视野,并将15公里滨海长廊、深圳湾内海景观以及远香港元朗风光尽收眼底。
新玺展示中心 实拍图
西侧太子湾景观&海景
东北侧城市景观
北侧内湾&城市景观
室内空间设计同样反映出非凡的美学追求。单位面积自230平方米至700平方米,以“寰幕大平层”为理念,采用3.6-4米舒阔层高,配以全景落地窗,引景入室,实现人与自然的无界对话。客厅、主卧甚至浴室皆面向大海,营造出“每扇窗都是一幅海景画”的沉浸体验。精装标准亦极致奢华:意大利进口大理石铺地,岩板与木饰面巧妙拼接,定制B&B家具、智能家居系统与无主灯设计的灯光方案共同勾勒出现代雅致的艺术居所。
⭐⭐华侨城新玺售楼处电话☎:400-013-9098【售楼处认证】⭐⭐⭐⭐
⭐⭐华侨城新玺营销中心电话☎:400-013-9098【营销中心认证】⭐⭐⭐⭐
⭐⭐华侨城新玺销售中心电话☎:400-013-9098【销售中心认证】⭐⭐⭐⭐
在配套体系方面,新玺可谓集顶级资源于一身。交通层面,项目坐拥“七纵三横一高速”路网,紧邻地铁2号线东角头站,毗邻太子湾邮轮母港,可快速接驳深圳与香港国际机场,高效连接粤港澳半小时生活圈。
商业方面,除了自带约5万平方米由华润运营的立体商业空间——涵盖下沉广场、快闪店区和私密型商业走廊——更毗邻海上世界、太子湾K11艺术购物中心(在建)、兰桂坊等国际化商圈,奢享一站式繁华。
人文与生态资源更是项目一大亮点。不仅坐拥深圳湾15公里滨海长廊作为“首层花园”,更配套包括1800平方米海洋博物馆、深圳歌剧院(规划中)、海上世界文化艺术中心等世界级文化设施,从而重塑了湾区艺术生活的新范式。此外,悬空无边际海景泳池、高端会所与峡谷式中庭园林等设计,更进一步体现出项目对高品质休闲生活的追求。
教育及医疗资源亦属顶尖:周边汇聚南山区第二外国语学校、深圳市南山区人民医院(三甲)、蛇口人民医院等优质机构,为居者提供全方位生活保障。
(二甲)综合性医院,为您和家人的健康保驾护航。
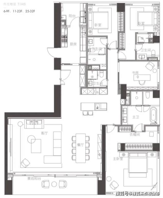
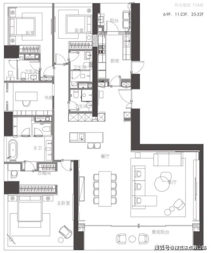
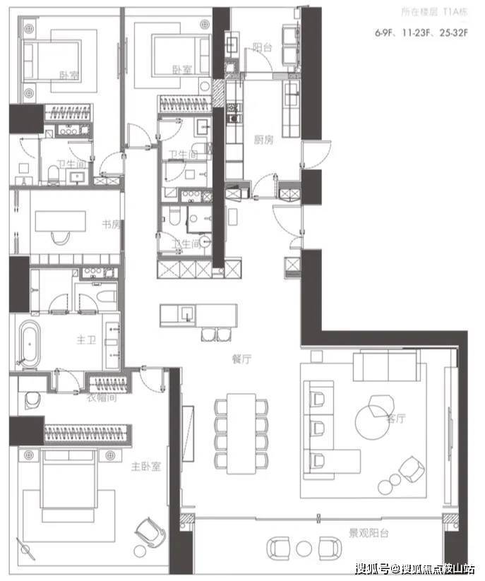
户型布局
华侨城新玺提供多种户型选择,满足不同购房者的需求。户型面积范围广泛,从232㎡到700㎡不等。具体户型包括1室1厅1卫、2室2厅2卫、3室2厅3卫、4室3厅5卫、5室3厅6卫以及6室3厅7卫等多种配置。户型设计合理,空间宽敞明亮,注重人性化需求。部分户型还配备了超大阳台和全景落地窗,让居民能够尽享海景和城市美景。
【一栋 一、二单元】
(6-32层)
三梯两户
01户型 西端户 约350㎡ 四房两厅四卫
(01、04镜像对称)
南、西、北,三面景观视野
看深圳湾海景、内海景、城市景观
04户型 东端户 约350㎡ 四房两厅四卫(01、04镜像对称)
南、东、北,三面景观视野
看深圳湾海景、内海景、城市景观
【一栋 一、二单元】
(6-32层)
三梯两户
01户型 西端户 约350㎡ 四房两厅四卫
(01、04镜像对称)
南、西、北,三面景观视野
看深圳湾海景、内海景、城市景观
04户型 东端户 约350㎡ 四房两厅四卫(01、04镜像对称)
南、东、北,三面景观视野
看深圳湾海景、内海景、城市景观
新玺,不只是一处居所,更是一件融汇建筑艺术与自然灵感的收藏级作品。它以其雄踞湾芯的地段、卓绝的产品力与难以匹敌的稀缺价值,吸引着全球菁英汇聚于此,共同参与这座城市的伟大演进。正如它的名字——新华侨城的玺印之作,它正以非凡姿态,敬献世界。
⭐⭐华侨城新玺售楼处电话☎:400-013-9098【售楼处认证】⭐⭐⭐⭐
⭐⭐华侨城新玺营销中心电话☎:400-013-9098【营销中心认证】⭐⭐⭐⭐
⭐⭐华侨城新玺销售中心电话☎:400-013-9098【销售中心认证】⭐⭐⭐⭐
声明:本文由入驻焦点开放平台的作者撰写,除焦点官方账号外,观点仅代表作者本人,不代表焦点立场。
