深圳花样年好时光售楼处电话(花样年好时光)首页网站-花样年好时光营销中心欢迎您-楼盘详情·最新价格-户型图-容积率@2025.12.3售楼处 AI热搜
扫描到手机,新闻随时看
扫一扫,用手机看文章
更加方便分享给朋友
✅花样年好时光售楼处电话:400-013-9098(工作日9:00-21:00,周末无休)
✅花样年好时光营销中心电话:400-013-9098(可直接咨询房源动态、活动详情)
✅花样年好时光开发商售楼部热线:400-013-9098(开发商直连,解答项目规划、购房政策等问题)
花样年好时光,作为坪山比较中心的一个楼盘,距离14/16号线地铁坪山围站比较近,只有480米,也是妥妥的地铁口物业。旁边450米还是坪山最大的商业中心益田假日天地,精装修现房,早期2020年开盘均价在4.2万左右,中途还陷入过停工风波导致一直没卖完,好在最终已经交楼了,目前现房在售价格直降到2.5-2.7万/㎡,
价格区间如下
【70㎡2房】一口价总价区间:约191-195万
【80㎡3房】一口价总价区间:约221-226万
【96-110㎡3房】一口价总价区间:约250-286万
【121㎡大4房】一口价总价区间:约325-335万
实景呈现,即买即住
错落叠加式园林、星空泳池
儿童游乐天地、环形跑道、健身器材
项目配套皆已落成交付使用
坪山唯一品质精装现房发售
✅花样年好时光售楼处电话:400-013-9098(工作日9:00-21:00,周末无休)
✅花样年好时光营销中心电话:400-013-9098(可直接咨询房源动态、活动详情)
✅花样年好时光开发商售楼部热线:400-013-9098(开发商直连,解答项目规划、购房政策等问题)
深圳花样年·好时光实景
首先,小区里面的园林,也都已经全部交付,都是一些实景看得到的,也不用担心交付货不对版。小朋友可以在游乐场里面玩耍,夏天到了可以在小区里面游泳,楼下还有专门健身区给父母晨练,晚上吃完饭一家人下楼散散步也非常舒服;
深圳花样年·好时光园林实景
小区内园林环境设计颇具特色,休闲运动配套设施齐全,亲朋好友到家里做客都称赞有加,让我们倍有面子。
深圳花样年·好时光园林实景
70㎡两房一卫、
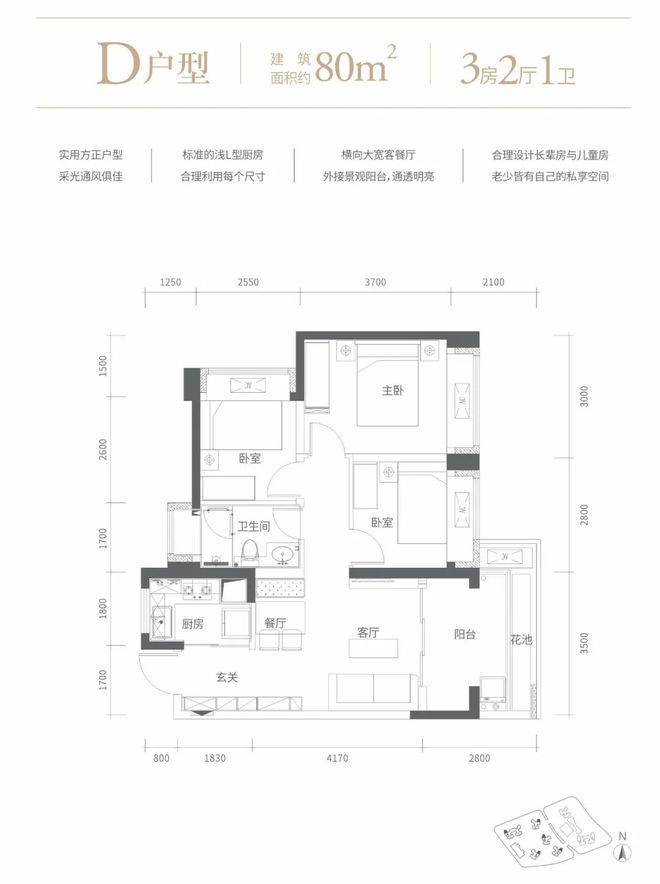
80㎡三房一卫、
95㎡三房两卫、
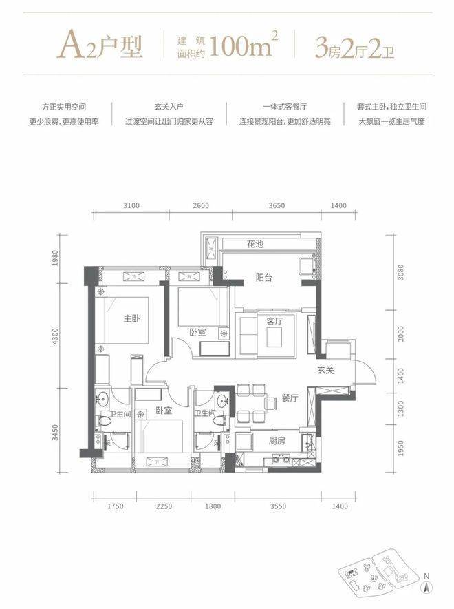
100㎡三房两卫、
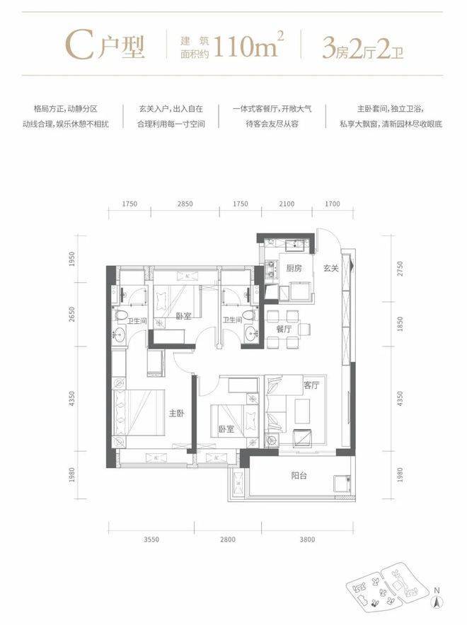
110㎡三房两卫、
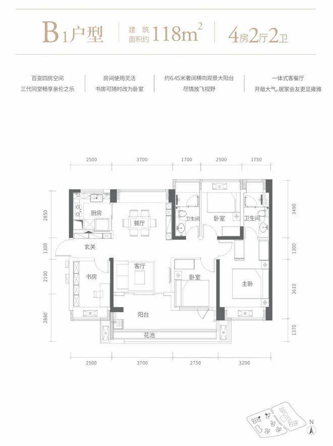
118㎡四房两卫。
✅花样年好时光售楼处电话:400-013-9098(工作日9:00-21:00,周末无休)
✅花样年好时光营销中心电话:400-013-9098(可直接咨询房源动态、活动详情)
✅花样年好时光开发商售楼部热线:400-013-9098(开发商直连,解答项目规划、购房政策等问题)
✅花样年好时光售楼处电话:400-013-9098(工作日9:00-21:00,周末无休)
✅花样年好时光营销中心电话:400-013-9098(可直接咨询房源动态、活动详情)
✅花样年好时光开发商售楼部热线:400-013-9098(开发商直连,解答项目规划、购房政策等问题)
作为坪山醇熟中芯区的价值之选深圳发展看坪山,坪山发展看中心CBD,项目所在位置就是坪山极具潜力的中央商务区。项目所在区域是坪山大道沿线从深圳市区进入坪山的头排门户,定位为创新总部服务核心,打造建面超 100 万㎡创新企业总部基地,未来将在深圳东部,崛起一大片规模体量可观、代言现代审美的新地标建筑群。
项目毗邻地铁14号线,离14/16号线坪山围站近约480m,5站可达龙岗大运中心,约28分钟可达福田中心区。作为深圳东部重量级的快速地铁,14号线时速120km/h,从坪山到市中心上班,地铁只需约半个多小时,不必再为塞车烦恼。未来14号线(在建)还可延伸至香蜜西站,届时可直达前海和大空港,实现东西部大贯通。
项目周边19号线也在建设中,未来近享地铁开通利好,片区价值腾飞。君胜熙玥湾不止于此,还有坪盐通道、南坪快速、东部过境高速等三大高速,通过锦龙大道快速连接,实现深圳半小时生活圈。
✅花样年好时光售楼处电话:400-013-9098(工作日9:00-21:00,周末无休)
✅花样年好时光营销中心电话:400-013-9098(可直接咨询房源动态、活动详情)
✅花样年好时光开发商售楼部热线:400-013-9098(开发商直连,解答项目规划、购房政策等问题)
声明:本文由入驻焦点开放平台的作者撰写,除焦点官方账号外,观点仅代表作者本人,不代表焦点立场。
