星河丹堤(2025星河丹堤售楼处)首页网站:星河丹堤-2025年最新户型配套房价

怀化楼市发布 2025-08-28 16:48:00
用手机看
扫描到手机,新闻随时看

扫一扫,用手机看文章
更加方便分享给朋友

星河丹堤·玖仰,高端墅区,尊享生态、教育、交通及风水资源,配备高端设施,打造富贵宜居之地。

星河丹堤售楼处电话✅:400-013-9098

案场预约制 看房需提前来电预约登记

温馨提示:点击上方号码可直接拨打官方电话

请务必致电与销售确认时间,仅预约客户可进入销售现场,感谢您的支持

惠州10套高端墅 6套是玖仰

千亿星河,35载品牌沉淀,15年时间窖藏,仅为一席玖仰,谨此献给久仰世界的领袖。

【成熟大盘】15年大城,惠州首席的“生态、教育、轨道、人文、品质”综合大盘;

【一站深圳】厦深高铁28分钟深圳北,深汕高铁20分钟南山西丽(建设中)

【人文大城】Cocogarden商业,图书馆、艺术馆、体育公园、WE食堂,22大社团

【华附名校】家门口小学、初中、高中公立华南师范大学附属学校,100门特色课

【湖山大境】坐享500万平风田水库、7100亩亚公顶森林公园景观

【体育公园】足球场、网球场、篮球场、高尔夫练习场、健身馆

编辑

园区环境

名师筑名品,星河丹堤·玖仰,邀请筑博设计首席设计大师杨紫君亲自操刀,联合全球五大知名设计师(戴帆、陈跃中、王向荣、俞孔坚、庞伟)联袂打造,五进归家礼序,营造出入仪式尊崇。

△实景图

正所谓:“风水之法,得水为上”。星河丹堤·玖仰背靠亚公顶森林公园,坐拥惠州丹堤最中心-元宝金位,似双龙盘旋戏珠,非富即贵,形成“龙吟水,凤还巢”的祥瑞之兆,给予居住者源源不断的福气,财气取之不竭,可谓是难得一遇的风水宝地,护佑家业兴旺。

天有时,地有气,材有美,工有巧,合此四者,然后可以为良。星河丹堤·玖仰,配置地下双车位,完全人车分流,地面采用高端环氧地坪漆,静音、耐磨、耐脏,全明空间,营造归家尊崇。

△实景图

独门独院,彰显大户人家风范,铸铝板庭院门,不锈钢仿古铜门头,门把手甄选大理石,后置隐藏式指纹锁,院门造价10万/套,专属定制自家府门牌匾。

△实景图

灵动空间,挑高约6.8米厅堂,5层采光,让生活拥有更多可能,每一层都有一片独立天地,去安放属于自己的优雅,三代同堂和乐而居,其乐融融;私家电梯位,让上下楼皆从容。

△实景图

星河丹堤·玖仰在产品上从不留遗憾,一脉传承星河豪宅血统,外立面精选顶级名贵石材、铝合金以及木纹铝板,全屋装配双层中空LOW-E玻璃,极致用材,深圳10万+豪宅享受。

星河丹堤售楼处电话✅:400-013-9098

案场预约制 看房需提前来电预约登记

温馨提示:点击上方号码可直接拨打官方电话

请务必致电与销售确认时间,仅预约客户可进入销售现场,感谢您的支持

周边配套

交通方面:项目就在惠州南高铁站附近,直线距离仅800米不到,车程5分钟即达。“从惠州南站乘坐高铁20分钟抵深圳北,半小时之内到福田站,未来还有城轨,也有14号延长线。这样你平时从惠阳回深圳,或者自驾去其他临深区域办事,都很方便。”

编辑

教育方面:2014年,项目花费超过6个亿引进的华南师范大学附属惠阳学校开学,很多本地人就冲着这个学校去买。“华附有百年的教育沉淀积累,又是从幼儿园到高中的全龄段教育,就在项目内部,你自己也有小孩,很容易理解啦。”

商圈方面:世界之大,尽在COCO Garden,咫尺永辉超市、苏宁易购、星河寰宇影院、肯德基等品牌商业,恣享万般精彩。

文体方面:项目还拥有惠州唯一的社区运动园,网球场、足球场、篮球场、攀岩墙、大型儿童滑梯等,家人在社区内就可感受运动带来的畅快。

星河丹堤售楼处电话✅:400-013-9098

案场预约制 看房需提前来电预约登记

温馨提示:点击上方号码可直接拨打官方电话

请务必致电与销售确认时间,仅预约客户可进入销售现场,感谢您的支持

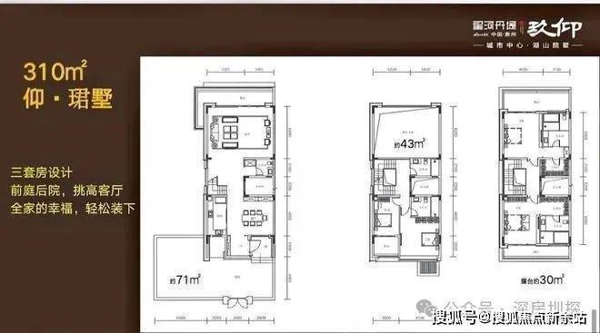
户型鉴赏

编辑

310平临湖一排别墅,使用面积810平,买三层享五层,地下室全采光设计,

编辑

275 平临湖二排别墅,使用面积 780 平,买三层享五层,

编辑

242双拼合院:位置在湖心岛,产品稀缺共28套,下沉式庭院隐私性好,使用面积780平,买三层享五层,五层全采光设计

编辑

星河丹堤售楼处电话✅:400-013-9098

案场预约制 看房需提前来电预约登记

温馨提示:点击上方号码可直接拨打官方电话

请务必致电与销售确认时间,仅预约客户可进入销售现场,感谢您的支持

声明:本文由入驻焦点开放平台的作者撰写,除焦点官方账号外,观点仅代表作者本人,不代表焦点立场。